Staré kasárne v Nitre premenili na škôlku
Znovuvyužitie bývalých kasární iniciované krajským mestom Nitra bolo výborným krokom k oživeniu jedného z najzaujímavejších areálov v meste – Martinského vrchu. Jeho začlenenie tak dáva potenciál na ďalšiu revitalizáciu a doplnenie funkcií korešpondujúcich s objektom škôlky aj s atmosférou miesta a areálom národnej kultúrnej pamiatky.
![]() |
Poznáte výhody Klubu ASB? Stačí bezplatná registrácia a získate sektorové analýzy slovenského stavebníctva s rebríčkami firiem ⟶ |
Oblasť, kde dnes stoja Staré kasárne pod Zoborom, bola osídlená od mladšej doby bronzovej. V 19. stor. tu bol jeden z piatich vojenských sústreďovacích táborov Uhorska. „Šiator tábor“ postavil v rokoch 1882 – 1884 architekt Ján Lyka a staviteľ G. Gregersen.
V septembri 1887 sa tu konali veľké manévre aj s účasťou cisára Františka Jozefa I. Kasárne sa využívali až do roku 2008. Mesto Nitra sa rozhodlo revitalizovať dané prostredie a s aktívnou asistenciou pamiatkového úradu vznikla sympatická rekonštrukcia a transformácia na materskú školu.
Staré a nové
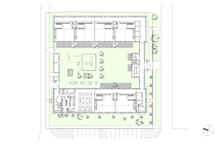
Autori návrhu Ľubomír Holejšovský a Vladimír Jarabica vytvorili uzatvorený blok s vnútorným dvorom, detským ihriskom, pieskoviskami a s vonkajšími terasami pri každej triede. Terasy prepájajú interiér tried s exteriérom dvora a ponúkajú priestor na aktivity na čerstvom vzduchu.
Blok tvorí pôvodný historický objekt na južnej strane a dostavba prepojovacej chodby s hlavným vstupom do škôlky, cez ktorú je prístupný novopostavený blok na severnej strane. Na západnej strane je dvor uzatvorený hospodárskym objektom a oplotením so vstupnou bránou. Jednotlivé triedy majú netradičné mezonetové riešenie, ktoré umožnilo vytvoriť vzdušné priestory.
Herne detí sú na prízemí a spálne na poschodí v podkrovnom priestore s galériou, ktorá tieto priestory prepája. Vo vstupnej časti sa nachádzajú priestory vedenia škôlky so zborovňou – umožňujú kontrolovať vonkajšie aktivity na dvore a terasách a zároveň kontrolovať pohyb v rámci objektu.
Pôvodný objekt bol očistený od povojnovej dostavby a bol prestavaný na jedáleň s kuchyňou, dve triedy pre deti s príslušenstvom a na sociálne zázemie pre personál. Severný blok je novostavba, v ktorej sú štyri triedy pre deti s príslušenstvom a nevyhnutné technické vybavenie.

Článok bol publikovaný v ASB Špeciáli TOP 50 01/2021.











