Umenie v priestore. Prvá etapa Kameniec sa vymyká štandardom
Realizácia bratislavského ateliéru v Kysuckom Novom Meste sa vymyká štandardom – kde by bežný okoloidúci čakal pravidelný raster okien a rozsiahle prázdne steny, Kamence ukazujú hravosť fasád a cit pre detail. Pridanou hodnotou je tiež značný umelecký vklad, ktorý vzišiel so spolupráce s radom umelcov a dodáva komplexu osobnosť.
![]() |
Poznáte výhody Klubu ASB? Stačí bezplatná registrácia a získate sektorové analýzy slovenského stavebníctva s rebríčkami firiem ⟶ |
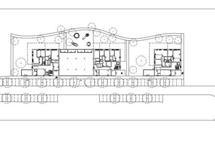
Súbor troch obytných domov stojí v rámci mestskej štruktúry na jej západnom okraji – kúsok od rieky Kysuca. Na voľnom priestranstve developer Istrofinal plánuje ďalší stavebný rozvoj, no výhodou je tiché prostredie a blízkosť prírody. Výstavba šiestich bytových domov prebieha v dvoch etapách.
Prvé tri bytové domy (Etapa 1) boli skolaudované v júni 2020. V súčasnosti prebieha výstavba ďalších troch bytových domov (Etapa 2).
Umenie v priestore
Špecifikom architektúry sedem- a deväťpodlažných objektov sú výrazné balkóny s odhalenou konštrukciou, ktoré dopĺňajú nepravidelne rozmiestnené francúzske okná. Mezonety na najvyšších poschodiach sú vybavené terasou, zatiaľ čo byty na prízemí majú k dispozícii predzáhradky orientované do vnútrobloku.
Organizácia verejného priestoru je prepojená s umiestnením obytnej štruktúry – z jednej strany sa nachádza promenáda, ktorá smeruje k rieke Kysuca, so vstupom do garáží. Na ich streche sú umiestnené komunitné záhrady a zelené plochy. Medzi jednotlivými domami tak vznikol zelený vnútroblok so záhradou a ihriskom.
Spomínanému ihrisku venovali architekti špeciálnu pozornosť. Pri jeho návrhu boli do projektu zapojení aj umelci Pavla Sceranková a Dušan Zahoranský. Výber jednotlivých prvkov ihriska je tematicky spojený s blízkou riekou, čím vkusným spôsobom prispieva k okrášleniu priestoru. Fasády domov ozvláštňujú veľkoplošné maľby umelcov Ota Hudeca a Miša Ormosa.
Od Ivice Markovičovej, Mareka Ormandíka a Veroniky Cvinčekovej pribudli na mieru prispôsobené maľované obklady, ktoré figurujú ako poznávací prvok, a jednotlivým objektom pridávajú akcent a osobitosť.

Článok bol publikovaný v ASB Špeciáli TOP 50 01/2021.









