Keď sa tradičný panelový systém spojí so súčasným architektonickým prístupom
Etapa Magnolia 3 je súčasťou rezidenčného komplexu NUPPU, ktorý od roku 2016 postupne vyrastá v bratislavskom Ružinove. NUPPU Magnolia 3 je prvou etapou, v ktorej developer priniesol inovatívny spôsob financovania prostredníctvom družstevného bývania.
![]() |
Poznáte výhody Klubu ASB? Stačí bezplatná registrácia a získate sektorové analýzy slovenského stavebníctva s rebríčkami firiem ⟶ |
Posledné tri dokončené etapy vrátane Magnolie 3 ponúkajú inovácie s dôrazom na modernú prefabrikáciu a predstavujú tak návrat k panelovej výstavbe v novom vyhotovení. Architektonický koncept sústredený okolo priestranného dvora je súčasťou riešenia celej lokality NUPPU. Filozofiou bolo dosiahnuť príjemne presvetlené a prevzdušnené bývanie so zeleňou a bohatým vyžitím pre obyvateľov všetkých vekových a záujmových skupín.
Dynamická architektúra
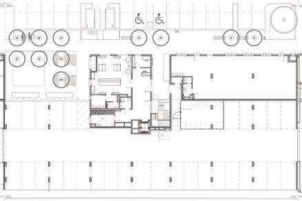
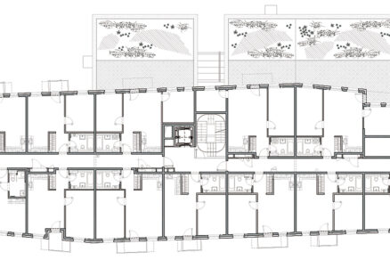
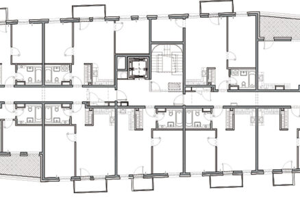
Architektonické riešenie je založené na objektoch a fasáde zalomenej do pôdorysného tvaru „J“. To umožňuje priehľady do dvora namiesto obvyklého pohľadu na protiľahlý dom. Každý objekt má jedno schodisko a chodbovú dispozíciu s obytnými plochami orientovanými na severnú a južnú fasádu. Súčasťou projektu sú aj polyfunkčné priestory v parteri obytných domov. Tie v predchádzajúcich etapách projektu už dnes prinášajú potrebné služby – obchod, kaviareň či škôlku.
Parkovanie je zabezpečené v suteréne a čiastočne pod objektom. V týchto priestoroch sú aj užitočné miestnosti pre bicykle a umyváreň pre zvieratá či na údržbu športového náčinia. Aby mali obyvatelia ešte o niečo väčší komfort, je v objekte aj klubovňa – spoločná miestnosť na coworking či drobné oslavy – a aj práčovňa.
Inovatívne konštrukčné riešenia
Výnimočnosť projektu spočíva v kombinácii tradičného panelového systému so súčasným architektonickým prístupom. Objekt je postavený na stĺpoch, pričom druhé podlažie je roznášacie železobetónové a nad ním sa ukladajú prefabrikované panelové podlažia.
Podlažia s bytovými priestormi od 3. NP majú vertikálne nosné prvky riešené ako prefabrikáty. Vnútorné steny sú plné prefabrikované, zatiaľ čo obvodové sú sendvičové s tepelnou izoláciou. Na monolitické steny 2. NP sa montovali škrupinové panely zjednocujúce vizuál. Zaujímavým riešením sú prefabrikované dosky s zárezom pri schodisku, ktoré umožnili bezpečný prístup na podlažie už počas výstavby.

Environmentálne benefity a komunitný prínos
Uplatnenie prefabrikácie prináša environmentálne výhody v podobe zníženia odpadu na stavbe, obmedzenia dopravy a nižšej spotreby vody vďaka technológii suchej výstavby. Stavba spĺňa požiadavky energetickej triedy A0. Projekt NUPPU Magnolia 3 významne prispieva k rozvoju komunitného života.
Obyvateľom ponúka prístup na dvojhektárový zelený dvor s oddychovými zónami, detskými ihriskami, so športoviskami a s komunitnými záhradkami. Zavedením pilotného projektu družstevného bývania NUPPU Magnolia 3 prispieva k zlepšeniu dostupnosti bývania pre širšie skupiny obyvateľstva. Tento model podporuje stabilitu komunity a vytvára príležitosti pre ľudí s obmedzeným prístupom k hypotékam.

NUPPU Magnolia 3, Bratislava-Nové mesto
- Výška investície: 15 mil. €
- Developer: YIT Slovakia
- Architekti: Atelier 3M
- Hlavný zhotoviteľ: Atelier 3M
- Zastavaná plocha: 1 165 m2
- Úžitková plocha: 7 293 m2
- Počet apartmánov: 95
- Plocha komerčných priestorov: 166 m2
- Počet parkovacích miest: 96
- Realizácia: 04/2022 – 02/2024
Článok bol uverejnený v časopise ASB TOP 50 stavieb Slovenska 2024/2025








