Späť na článok Keď sa tradičný panelový systém spojí so súčasným architektonickým prístupom
5 / 9
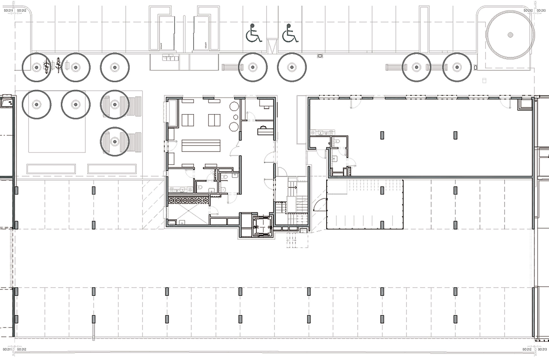
Pôdorys 1. PP budovy
Pôdorys 1. PP budovy Zdroj: YIT
ASB Logo ASB Logo