Späť na článok Keď sa tradičný panelový systém spojí so súčasným architektonickým prístupom
6 / 9
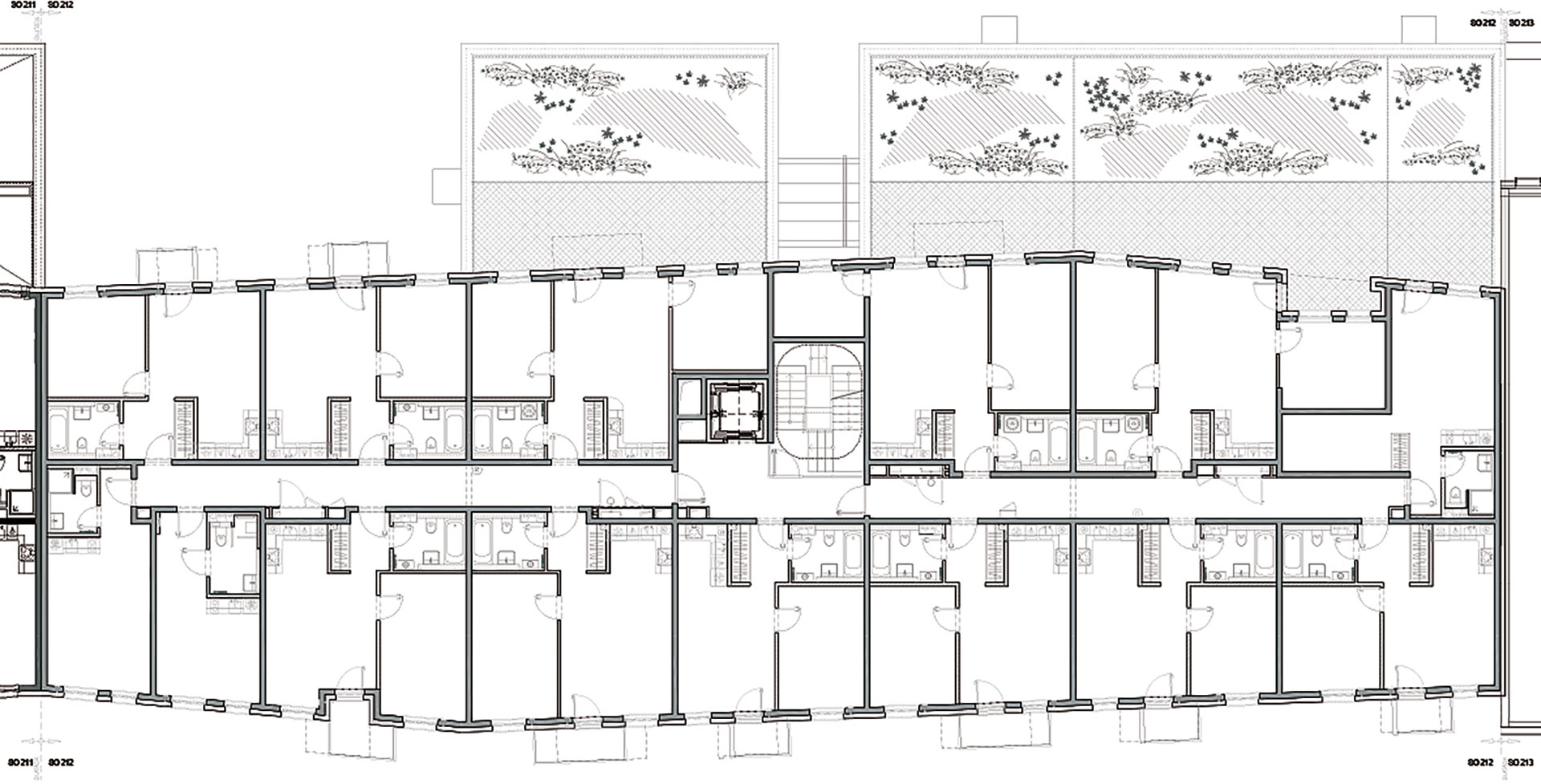
Pôdorys 1. NP budovy
Pôdorys 1. NP budovy Zdroj: YIT
ASB Logo ASB Logo