Späť na článok Keď sa tradičný panelový systém spojí so súčasným architektonickým prístupom
8 / 9
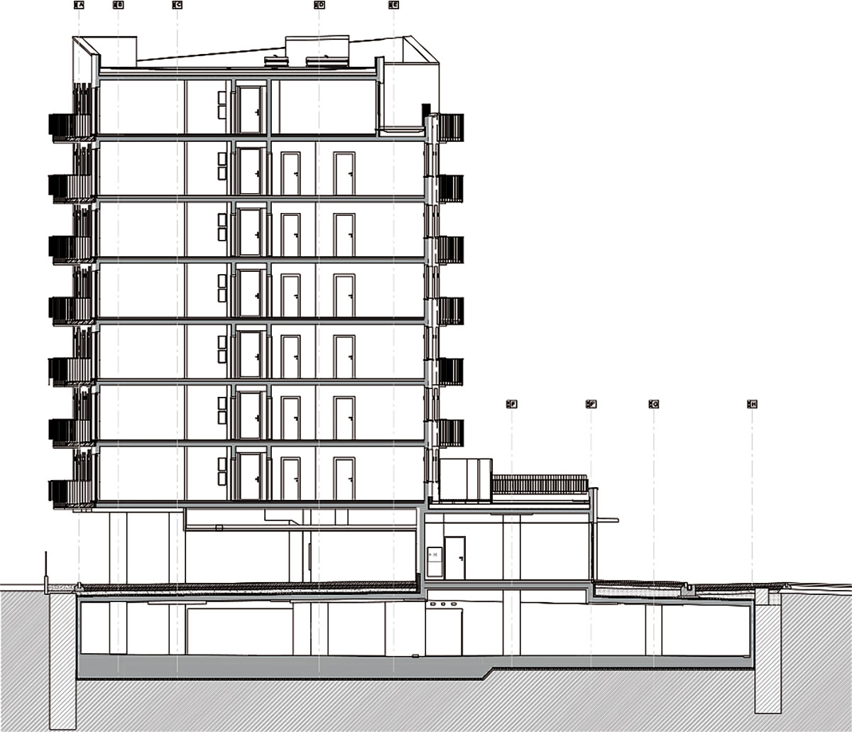
Rez budovou
Rez budovou Zdroj: YIT
ASB Logo ASB Logo