Späť na článok Keď sa tradičný panelový systém spojí so súčasným architektonickým prístupom
7 / 9
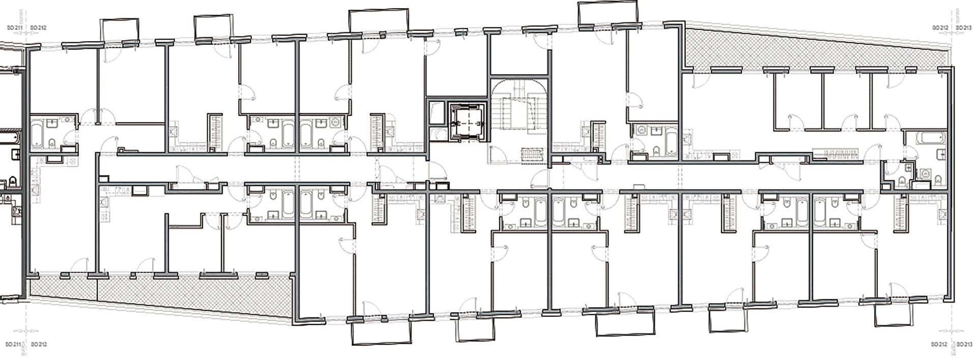
Pôdorys 8. NP budovy
Pôdorys 8. NP budovy Zdroj: YIT
ASB Logo ASB Logo