Extrémna premena pod hradným kopcom. Vzniklo tu ubytovanie pre turistov, kaviareň, ateliér aj strešný byt
Rekonštruovaný objekt bol postavený koncom 19. storočia, pričom v priebehu času prešiel viacerými prestavbami aj zmenami funkčného využitia. Pred aktuálnou rekonštrukciou sa tu nachádzali predovšetkým kancelárske priestory nehodiace sa do danej lokality.
![]() |
Poznáte výhody Klubu ASB? Stačí bezplatná registrácia a získate sektorové analýzy slovenského stavebníctva s rebríčkami firiem ⟶ |
Dielo sa nachádza na hradnom kopci v historickom centre Bratislavy. Prístup k nemu je možný z Mikulášskej ulice, Beblavého ulice a hradnej záhrady. V jeho tesnej blízkosti, pod hradným kopcom Bratislavského hradu, sa nachádza Chrám svätého Mikuláša.
Z ostatných strán je územie ohraničené pozemkami v súkromnom vlastníctve, čo zabezpečuje rozsiahlu mieru súkromia a výrazné oddelenie od okolitej zástavby. Keďže z hľadiska územného plánu sa budova nachádza v stabilizovanom území, bolo potrebné zachovať pôvodný stavebný objem.
Hlavnou myšlienkou návrhu bol presun vertikálnej hmoty, ktorú tvorilo zasklené komunikačné jadro (prístavba z konca 20. storočia), do horizontálnej polohy do úrovne krovov v podobe cortenového novotvaru. Tým sa podľa slov architektka Svena Szokolaya podarilo otvoriť objekty smerom k hlavnej pešej trase (priestor okolo sochy čarodejnice) a pôvodný dvor sa využíva ako vstup a pobytový priestor pre jednotlivé apartmány.
Pozdvihnutie potenciálu
„Návrhom sme sa pokúsili objekt opticky otvoriť odstránením uzavretej zasklenej časti kancelárskych priestorov a vytvoriť tak atmosféru pôvodného dvorového priestoru medzi objektmi.
Stratenú hmotu sme chceli presunúť do strešnej úrovne priznaním cortenového novotvaru. Pôvodný návrh dával novotvaru ešte väčšiu dôležitosť tým, že prepichoval krovy po stranách, a tak bol viditeľný aj z bočných pohľadov, ale nakoniec sa po viacerých diskusiách v pamiatkovej komisii pristúpilo k jemnejšiemu riešeniu. Novotvar je viditeľný len medzi krovmi a v dizajne doplnkov jednotlivých cortenových prvkov,“ vysvetľuje architekt.
Novú funkčnú náplň tvorí krátkodobé ubytovanie pre turistov, kaviareň, ateliér a strešný byt. Sekundárnou myšlienkou návrhu bolo doposiaľ neexistujúce prepojenie dvoch nádvorí vnútorným schodiskom (spodné nádvorie – vstup do apartmánov a horné nádvorie – odstavná plocha pre návštevníkov).
Cieľom konceptu bolo aj pozdvihnutie potenciálu exponovanej lokality, ktorá sa nachádza na jednej z hlavných trás k Bratislavskému hradu a jej oživenie novou funkčnou náplňou.

Rešpekt k historickému kontextu
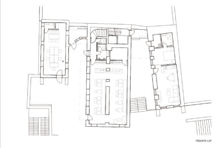
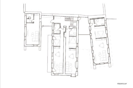
Polyfunkčný objekt je rozdelený na štyri časti – budovy A, B, C a D, pričom každá z týchto budov plní špecifickú funkciu v rámci celkového projektu. Budova A obsahuje na prízemí kanceláriu architektonického ateliéru a na poschodí izbu penziónu, ktorá je prístupná cez budovu C. Budova B (stredná časť) zahŕňa na prízemí kaviareň, ktorá je verejným priestorom pre návštevníkov a hostí penziónu, a na prvom poschodí sú umiestnené dve izby penziónu.
Vstup do budov C a D je zabezpečený z tejto budovy. Budova C slúži ako spojovací priestor medzi budovami B a D a obsahuje exteriérovú vstupnú halu. V podkroví budovy C sa nachádza novovybudovaná vstavba, ktorá tvorí časť dennej zóny podkrovného bytu – obývaciu izbu s prístupom na terasu.

Budova D obsahuje na prízemí izbu penziónu a kotolňu, na druhom podlaží je ďalšia izba penziónu a v podkroví sa nachádza kuchyňa s jedálňou, ktorá patrí k podkrovnému bytu.
Tento koncept polyfunkčného objektu zabezpečuje, podľa slov architektka, flexibilitu a rôznorodosť v jeho využívaní, pričom spája komerčné, ubytovacie a obytné priestory v jednom celku.
Pokus o oživenie bratislavského podhradia nielenže rešpektuje historický kontext oblasti, ale zároveň prináša moderné architektonické riešenia, ktoré sú prispôsobené potrebám súčasnej doby. Cieľom je nielen zachovať historický ráz oblasti, ale aj oživiť a vylepšiť verejný priestor.
Prestavba polyfunkčného objektu Mikulášska č. 3 a 5, Bratislava-Staré Mesto
Investor: EMROK
Ateliér: ATELIER-S
Architekti: Sven Szokolay, Miroslav Tomík, Hana Wildová
Zastavaná plocha: 380 m2
Úžitková plocha: 670 m2
Počet podlaží: 3 NP
Počet bytov: 1
Počet apartmánov: 5
Realizácia: 2023 – 2024












