Späť na článok Extrémna premena pod hradným kopcom. Vzniklo tu ubytovanie pre turistov, kaviareň, ateliér aj strešný byt
8 / 9
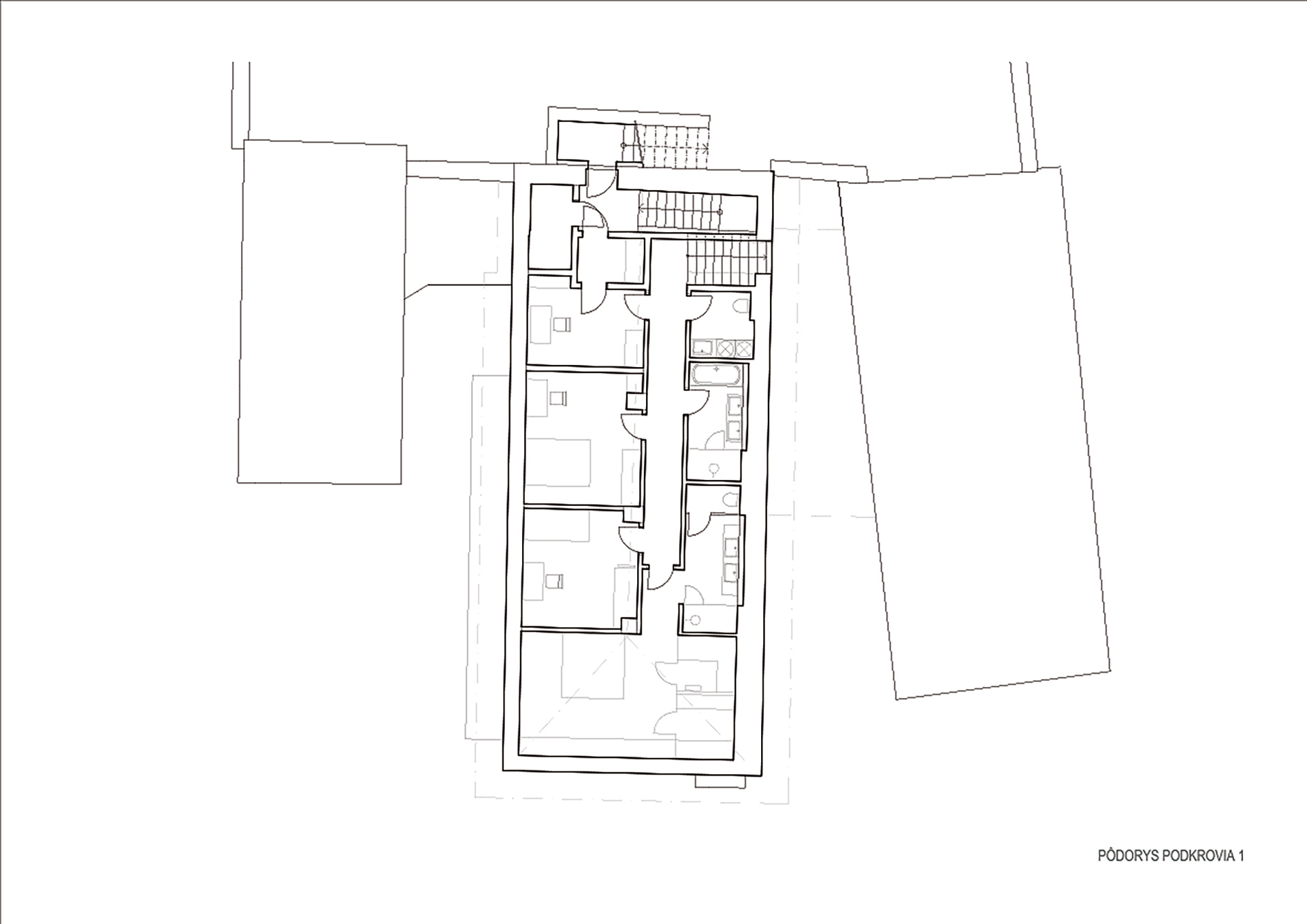
Pôdorys podkrovia
Pôdorys podkrovia Zdroj: EMROK
ASB Logo ASB Logo