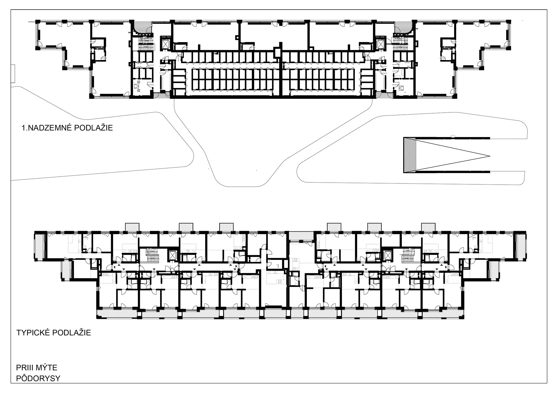
Pri Mýte III
Tretia etapa projektu Pri Mýte je vyvrcholením úspešného rezidenčného projektu, ktorý spája mestský charakter, nadčasovú architektúru a citlivý prístup k verejnému priestoru.






Mesto
Bratislava - Nové Mesto
Stav
V realizácii
Investícia
17 mil. €
Developer
Penta Real Estate
Rok začiatku
2022
Rok dokončenia
2024
Segment
Bývanie