Zaujímavé mostné objekty na stavbe Brno – Přerov, 2. stavba, Blažovice – Vyškov a problémy pri ich návrhu
V rámci prípravy stavby modernizácie železničnej trate v úseku Brno – Přerov, 2. stavba, Blažovice – Vyškov, v stupni dokumentácie pre územné rozhodnutie, sme sa spolupodieľali na projektoch niekoľkých železničných mostov. Celková dĺžka modernizovaného úseku je 21,7 km.
![]()  | 
	Poznáte výhody Klubu ASB? Stačí bezplatná registrácia a získate sektorové analýzy slovenského stavebníctva s rebríčkami firiem ⟶ | 
Úsek bude súčasťou vysokorýchlostnej trate Praha – Brno – Ostrava a výrazne prispeje k zrýchleniu dopravy a pohodliu cestujúcich. Cieľom príspevku je poukázať na rôzne problémy pri návrhu mostných konštrukcií v stupni dokumentácie pre územné rozhodnutie a ich riešenie pri jednotlivých konštrukciách.
V súčasnosti sa v danom úseku nachádzajú mostné objekty v rôznom veku, s rôznymi konštrukciami a v rôznom stavebno-technickom stave. Vek mostov sa pohybuje v intervale 82 až 135 rokov. Mosty sú spravidla tvorené oceľovými prvkovými konštrukciami, tehlovými klenbami, klenbami z prostého betónu, prípadne so zabetónovanými koľajnicami.
Vzhľadom na existujúci stav a vek jednotlivých mostov, ako aj navrhované parametre trate (značná časť vedie v novom telese) bolo potrebné pristúpiť k návrhu nových nosných konštrukcií s priebežným koľajovým lôžkom.
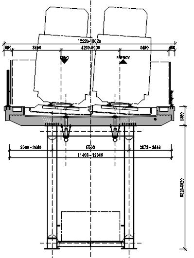
Prechodový prierez
Všetky železničné mosty sú navrhované pre traťovú rýchlosť 200 km/h. V ČSN 73 6201 sa pri navrhovanej rýchlosti na mostných objektoch počíta s hodnotou voľného mostného prierezu (VMP) 3,5 m od osi navrhovanej koľaje. VMP je zložený z prejazdného profilu Z-GC a z postrannej plochy (vľavo a vpravo od osi koľaje), ktorá vymedzuje bezpečný odstup od obrysu prejazdného profilu Z-GC. V STN 73 6201 sa pri danej navrhovanej rýchlosti nepočíta s prechodovým prierezom, ktorý by zabezpečil dostatočnú zónu na odstup od prechádzaného vozidla.
V tejto norme je definovaný len prechodový prierez MPP 3,0 v staniciach a MPP 2,5 v šírej trati do rýchlosti 160 km/h. Pri porovnaní ČSN 73 6201 a STN 73 6201 možno konštatovať, že STN nespĺňa technické požiadavky na zaistenie bezpečnosti prevádzky na železničných mostoch pre vyššie rýchlosti. Rezerva medzi VMP (MPP) v oboch normách je daná rovnakou hodnotou a je stanovená na min. 125 mm od súvislej prekážky pri koľaji s priebežným koľajovým lôžkom.
Všetky navrhované mostné konštrukcie, či už v stanici, alebo v šírej trati, boli riešené s VMP 3,5 m. Toto rozšírenie prechodového prierezu vedie k navýšeniu počiatočných investičných nákladov, avšak výhľadovo vedie k zvýšeniu bezpečnej prevádzky na modernizovaných železničných tratiach a ich využitiu do budúcnosti.
Geologické podmienky
Z geologického hľadiska sa dané záujmové územie nachádza na hranici Českého masívu a Karpatskej sústavy. Podložie tvoria segmenty neogénneho mora, pozostávajúce z piesčitých vápencov a vápnitých ílov. Terciárne sedimenty sú prekryté kvartérnymi sedimentmi, tvorenými prevažne jemnozrnnými zeminami s preplástkami piesčitých a štrkovitých vrstiev.
Jednotlivé vrstvy sú zastúpené prevažne íloprachovitými časticami F6/Cl, F5/MI, F7/MH,MV, F8/CH,CV, miestami s prímesou piesčitej zložky F4/CS. Hladina spodnej vody bola vo vrtoch ustálená na hodnote približne 1,5 – 2,0 m od povrchu terénu. Uvedené geologické podmienky značne komplikovali návrh zakladania jednotlivých mostných konštrukcií.
Často sa stávalo, že aj pri jednoduchých konštrukciách bolo potrebné navrhovať hlbinné zakladanie až do niekoľkých metrov. Pri návrhu zložitejších mostných estakád bolo navrhované hlbinné zakladanie až do hĺbky 30 m. Z dôvodu minimalizovania sadania jednotlivých mostov bolo potrebné realizovať pomerne podrobné statické výpočty, aj keď sa nachádzame iba v stupni dokumentácie pre územné rozhodnutie.
Na základe statických výpočtov sa upravovala samotná základová doska, ako aj hĺbky pilót, čím sa často dokázala znížiť budúca náročnosť diela a zredukovali sa predpokladané finančné náklady.
Železničná estakáda v km 31,250 a železničná estakáda v km 37,060
Obe estakády prevádzajú železničnú trať ponad existujúce údolia, kde sa v súčasnosti nachádza cesta I. triedy, vodné toky a rôzne poľné prístupové komunikácie. Trať vedie v daných úsekoch prevažne v priamke, prípadne v prechodnici s výškovým stúpaním a klesaním. Výškový oblúk trate sa nachádza mimo navrhovanej mostnej konštrukcie.
Celková dĺžka nosnej konštrukcie je 227 m s rozpätím jednotlivých polí 30 + 40 + 2 × 30 + 40 + 30 m. Je zložená z dvoch dilatačných celkov s dilatačnou škárou uprostred mosta. Ide o dvojkoľajnú mostnú konštrukciu. Navrhovaná stavebná výška mosta je 4,47 m, pričom nosnú konštrukciu tvorí dvojica plnostenných oceľových I-nosníkov s výškou 3,2 m v osovej vzdialenosti 5,5 m, čím sa zabezpečuje dostatočná stabilita nosnej konštrukcie v priečnom smere (obr. 1).

Na oceľových nosníkoch je uložená spriahajúca železobetónová doska s premennou hrúbkou, pričom v najtenšom mieste je navrhnutá hrúbka 0,415 m. Doska je spádovaná k navrhovaným mostným odvodňovačom, ktoré sú umiestnené približne v osi navrhovaných koľají.
Spodnú stavbu mosta tvoria krajné opory O1 a O7 s rovnobežnými krídlami a medziľahlými dvojdriekovými piliermi. Vzhľadom na zložité geologické podmienky je spodná stavba navrhnutá na základovej doske a pilótach dosahujúcich dĺžku 25 m.
Medziľahlé piliere P3 a P5 sú z dôvodu osadenia pevných ložísk v horizontálnom smere zabezpečené mikropilótami, čím sa zvyšuje horizontálna únosnosť mosta v zložitých geologických podmienkach pri prenose vodorovných účinkov do podložia (obr. 2).

Železničná estakáda v km 38,592
Estakáda prevádza železničnú trať ponad existujúce údolie, kde sa v súčasnosti nachádzajú komunikácie rôznych kategórií a v časti dochádza ku kríženiu s existujúcou železničnou traťou. Trať vedie v úseku v oblúku s polomerom 2 850 m a výškovo stúpa v sklone 5 ‰ v smere staničenia.
Celková dĺžka nosnej konštrukcie je navrhnutá na 599,85 m a je zložená z desiatich prostých polí s rozpätím jednotlivých polí 58,4 m (10 × 58,4 m). Ide o dvojkoľajnú mostnú konštrukciu. Navrhovaná stavebná výška mosta je 7,35 – 10,35 m.
Nosnú konštrukciu tvorí dvojica priehradových oceľových nosníkov s parabolickým spodným pásom s výškou 5,78 – 8,78 m v osovej vzdialenosti 5,5 m, čím sa zabezpečuje dostatočná stabilita nosnej konštrukcie v priečnom smere (obr. 3).

Na oceľových nosníkoch je uložená spriahajúca železobetónová doska s premennou hrúbkou, v najtenšom mieste je navrhnutá hrúbka 0,6 m. Doska je spádovaná k navrhovaným mostným odvodňovačom, ktoré sú umiestnené približne v osi navrhovaných koľají. Osová vzdialenosť koľají na moste je premenná, od 4,2 m až po 5,0 m, čo viedlo k premennému vyloženiu dosky v priečnom smere pri zachovaní navrhovanej osovej vzdialenosti hlavných nosníkov.
Spodnú stavbu mosta tvoria krajné opory OP1 a OP2 s rovnobežnými krídlami a medziľahlými dvojdriekovými piliermi P1 až P9. Vzhľadom na zložité geologické podmienky je spodná stavba navrhnutá na základovej doske a pilótach dosahujúcich dĺžku 30 m.
Prechod medzi mostnými objektmi a železničným telesom
Prechod medzi mostným a železničným telesom je riešený podľa predpisu S4, prílohy č. 24 pre novonavrhované objekty. Prechod tvorí nenamŕzavá priepustná zemina, ktorá je vhodná do zemného telesa. Značný problém predstavovalo určenie sadania samotného zemného telesa a opôr mostov.
Počas vypracovávania projektu prebehlo značné množstvo porád s cieľom určiť vhodný spôsob minimalizovania sadania. V konečnom štádiu bola navrhnutá predkonsolidácia násypu pred výstavbou mostného objektu, čím sa minimalizovalo sadnutie násypu a spodnej stavby mosta. Následne sa navrhlo budovanie spodnej stavby mosta a vybudovanie prechodových oblastí.
Statický výpočet
Statický výpočet pri navrhovaných konštrukciách sa podľa požiadaviek správy železníc zameral na posúdenie rozhodujúcich prierezov. Pri posúdení sa overovali rozhodujúce prierezy z hľadiska medzného stavu únosnosti, ako aj medzného stavu používateľnosti.
Podľa ČSN EN 1991-2/Z4 je pri všetkých nosných konštrukciách potrebné overenie dynamickou analýzou (obr. 4 a 5), čo je v zmysle normy STN EN 1991-2 potrebné len pri vybraných typoch nosných konštrukcií a vyšších návrhových rýchlostiach.


Statické posudky pri spodnej stavbe boli zamerané na posúdenie odolnosti základovej konštrukcie na zvislé a horizontálne účinky. Veľký dôraz sa kládol na posúdenie celkového sadnutia pilierov.
Vzhľadom na zložitosť základových pomerov, ako aj prístup k jednotlivým konštrukciám sa pozornosť kládla aj na správne určenie vzájomnej interakcie koľaje a mosta.
Na stanovenie správnej odolnosti bolo dôležité určiť tuhosť spodnej stavby, od čoho sa odvíjala celková odolnosť prierezu. Na stanovenie tejto odolnosti sú spracované mostné vzorové listy MVL 150. V nich sú však často uvedené odkazy na ďalšie časti, ktoré nie sú doteraz podrobne spracované.
Postup výstavby
Pri objektoch, ktoré majú významnejší charakter, požadoval investor určenie základných stavebných postupov, a tým aj rozsahu potrebného na zriadenie prístupových a montážnych plôch. Súčasťou bolo aj určenie základných mechanizmov na samotnú výstavbu mosta tak, aby sa minimalizovali rôzne prestoje a finančné náklady na výstavbu.
Záver
Pri návrhu mostných objektov na modernizovanom úseku železničnej trate boli použité v súčasnosti platné predpisy v Českej republike, ktoré sú výrazne odlišné od predpisov v Slovenskej republike. Poukázať možno napríklad na zásadný rozdiel, ktorý už v stupni dokumentácie pre územné rozhodnutie požaduje posúdenie základných prierezov, čím sa minimalizujú zvýšené finančné náklady v ďalšom stupni projektovej dokumentácie.
Celkovo možno konštatovať, že už v stupni pre územné rozhodnutie sa kladú zvýšené požiadavky na konštrukcie z dôvodu minimalizovania finančných nákladov, čo môže v ďalšom stupni predstavovať limitujúci faktor a viesť k obmedzeniu projektanta pri slobodnom rozhodovaní o návrhu konštrukcie z dôvodu nepredvídateľných okolností. Na druhej strane, tento prístup vedie už v dokumentácii pre územné rozhodnutie k presnejšiemu odhadu nákladov na realizáciu.
TEXT: Ing. Vladimír Piták
OBRÁZKY: AFRY CZ
Vladimír Piták je projektantom mostných konštrukcií v spoločnosti AFRY CZ.
Literatúra
1. Modernizace trati Brno-Přerov, 2. stavba Blažovice-Vyškov. Dokumentácia pre územné rozhodnutie, 05/2022.
2. ČSN 73 6201 Projektování mostních objektů, 10/2008.
3. STN 73 6201 Projektovanie mostných objektov, 10/2001.
								                            
								                            
						
						
						
						
						
						


