Toto nebola ľahká úloha. V nevýraznej lokalite si však aj atraktívne bývanie našlo miesto
Prostredie bez identity, akejkoľvek prívetivosti a s ťažko predstaviteľnými parametrami na bývanie dokázali architekti Andrej Alexy a Erik Jakeš premeniť na atraktívny súbor rodinných domov, ktoré charakterizuje rozihraná silueta striech, jednotná kompozícia i farebnosť.
![]() |
Poznáte výhody Klubu ASB? Stačí bezplatná registrácia a získate sektorové analýzy slovenského stavebníctva s rebríčkami firiem ⟶ |
Zvláštne miesto, stratené kdesi za „Harley pubom“, pri železnici a v blízkosti cintorína Vrakuňa. Prostredie bez identity, akejkoľvek prívetivosti a s ťažko predstaviteľnými parametrami na bývanie. Ako hovorí architekt Andrej Alexy: „Miesto nič moc“. Dnes je však všetko inak.
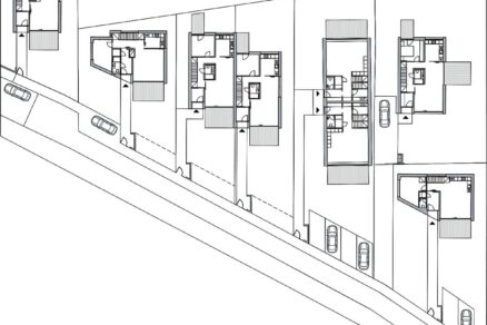
Snaha autorov o minimalizovanie nepriaznivých vstupných parametrov parcely sa podpísala pod urbanistické riešenie, ktoré sa usiluje o elimináciu negatív lokality. Príjazdová cesta a parkovanie lemujú líniu železnice, aby sa domy dostali čo najďalej od trate. Každý z nich má aj napriek stiesneným podmienkam vlastnú záhradu, jednu alebo dve terasy na teréne a niektoré domy majú aj dobre ukrytú terasu v šikmej rovine strechy.

Upokojený celok
Architektonický koncept domov pracuje s variáciami jedinej východiskovej formy – prototypu – jednoduchého objektu so šikmou strechou s obytným podkrovím. Priestorová a hmotová koncepcia vychádzala z dvoch krokov. Prvým bolo zdanlivo nepredvídateľné umiestnenie v podstate identických domov na pozemku, ktoré viedol zámer získať čo najlepšiu orientáciu na svetové strany a zároveň dopriať obyvateľom domov čo najviac súkromia vnútri aj v záhrade.
Druhý krok predstavoval redukciu všetkej hmoty, ktorá zasahovala do ochranného pásma kanalizácie. Tým sa podarilo dosiahnuť tvarovú modifikáciu objektov a celé územie získalo bohatšiu scénografiu.
„Preč s monotónnosťou, nech má každý z domov niečo osobité, vlastné, iný výhľad, inak umiestnený vstup či terasu na streche. Celok je však zámerne upokojený jednotiacou bielou. Biele sú fasády aj strechy, ako racionalizujúci a usporiadaný protipól k bizarnej pestrosti a náhodnosti okolia,“ vysvetľuje Alexy.
Logika priestorových vzťahov
Štyri domy a jeden dvojdom sú navrhnuté ako novostavby, posledný objekt, ktorý bol kedysi firemným sídlom investora, sa zmenil na nepoznanie a je z neho rodinný dom s dvomi bytmi. Bývanie je vždy rozložené do dvoch podlaží: na prízemí je denná časť s prístupom do záhrady, hore v podkroví je časť nočná. Šikmá sedlová strecha má uhlopriečny hrebeň, vďaka čomu je priestor pod strechou voľný, a teda maximálne využiteľný.
Hoci ide o pôvodne suburbánne prostredie, kam sa zatiaľ úvaha o vyššej urbanizácii nedostala, skupinka rodinných domov predstavuje malú usporiadanú štruktúru, ktorá by sa mohla stať východiskom pre budúce úvahy o logike priestorových vzťahov v tomto území. Rámcová uniformita domov v ich základnej forme a parametroch sa usiluje o vytvorenie sociálne vyváženého susedstva.
Rodinné domy Rebarborova
Výška investície: 1, 6 mil. €
Developer/investor: BSS
Architekti: ALEXY & ALEXY
Hlavný zhotoviteľ: BSS
Zastavaná plocha: 575 m2
Úžitková plocha: 836 m2
Počet nadzemných: 2
Počet domov: 6
Počet bytov: 8
Počet parkovacích miest: 18
Realizácia: 3/2021 – 6/2023












