Nitra ako na dlani. Butikové vinárstvo na kopci nekričí o pozornosť, ale zaujme modernou architektúrou
Juhozápadné svahy Zobora patria k najlukratívnejším lokalitám Nitry a niet divu, že si ich pre svoje vinárstvo vyhliadol aj investor pripravovaného vinárstva Zobor. Podľa slov zástupcu investora Martina Štofka je cieľom projektu vybudovať moderné mestské vinárstvo, ktorého súčasťou budú spoločenské priestory, kaviareň s reštauráciou, priestor na degustáciu a archív vín; súčasťou projektu je aj ubytovanie pre približne 45 návštevníkov.
![]() |
Poznáte výhody Klubu ASB? Stačí bezplatná registrácia a získate sektorové analýzy slovenského stavebníctva s rebríčkami firiem ⟶ |
„Momentálne je projekt vo fáze vybavovania stavebného povolenia a začíname pracovať na interiéri, ktorý bude podkladom pre realizačný projekt,“ približuje Ing. arch. Richard Baláži z ateliéru A.M. architects, ktorý získal túto zákazku na základe vyzvanej architektonickej súťaže. K hlavným konzultantom patril aj Rastislav Demeš z vinárstva Tajná, ktorý precizoval zadanie spolu s investorom.
„K zdôvodneniam výberu nášho projektu patrilo, že sme najlepšie adresovali viaceré požiadavky investora, pričom jednou z nich bolo citlivé umiestnenie objektu do existujúcej vilovej štvrte pod Zoborom,“ pokračuje Richard Baláži. „Ide totiž o jednu z mála častí na tomto dominantnom nitrianskom kopci, kde je ešte voľný, „nezastavaný“ výhľad na celú Nitru.“
S rešpektom k viniciam
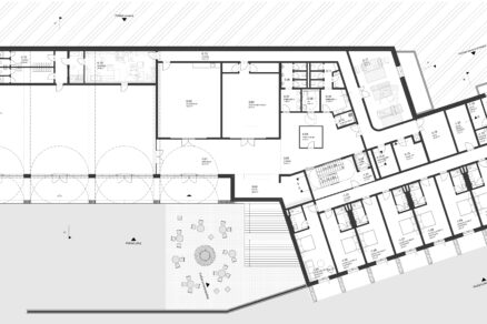
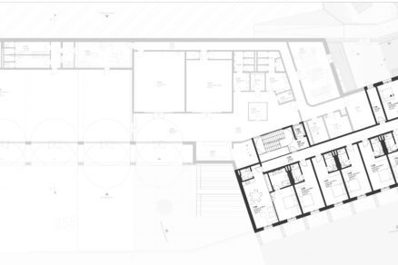
Aj preto architekti nešli vo svojom návrhu do výšky, ale ho roztiahli do šírky. Využívajú pri ňom aj strmú časť pozemku a len minimálne zasahujú do existujúcich viníc. Z Kláštorskej ulice bude objekt vnímateľný ako jednopodlažný, pričom zvyšok bude zasadený pod úrovňou novonavrhovaného parkoviska.
„Pôvodne sa uvažovalo aj o výrobe vína, ale investor si neskôr uvedomil, že dané miesto je príliš exkluzívne,“ dodáva Ing. arch. Boris Schultz z A.M. architects. „Preto sa výroba presúva do inej lokality a my sme sa vo svojom koncepte sústredili na vytvorenie reprezentatívneho multifunkčného priestoru slúžiaceho na firemné eventy, svadobné obrady, semináre či zážitkové degustácie vína. Súčasťou reštaurácie bude aj predaj vína a iných výrobkov.“
Investor povýšený na spoluautora
„Investora vždy povyšujeme na spoluautora a aj v tomto prípade mal veľa dobrých pripomienok, ktoré sme akceptovali,“ zdôrazňuje Richard Baláži. „V rámci novonavrhovaného parkoviska vznikne priestor vyhliadky, kde sa môžu okoloidúci zastaviť a pokochať výhľadmi…“
Dopĺňa: „Na úrovni parkoviska sa nachádza bezbariérovo prístupná reštaurácia, pod ktorou bude penzión s kapacitou pre asi 45 ľudí. Ten je natočený tak, aby sa umocnil výhľad na historickú časť mesta a Nitriansky hrad, a zároveň odklonený od spoločenskej sály, aby získal určitú intimitu. Izby na spodnom podlaží majú malé predzáhrady v dotyku s vinohradom.“

„Dispozičnou i funkčnou osou projektu bude tzv. grand schodisko široké 8 m, cez ktoré sa dá dostať až do zážitkovej záhrady v rámci rozľahlého vinohradu s plochou až 6 ha,“ približuje Boris Schultz z A.M. architects.
„Grand schodisko zároveň funkčne delí objekt na dve architektonické hmoty – po pravej strane bude reštaurácia s penziónom, po ľavej spoločenská sála s plochou 600 m2, degustačná a sudová pivnica, v ktorej budú dozrievať vína. Snažili sme sa návrh objektu umiestniť k hornému okraju pozemku, ktorý tvorí nevyužitý strmý zráz s náletovou zeleňou. Nechceli sme nič okázalé, ale decentný objekt, ktorý by prirodzene zapadal do vinohradu a výrazne neovplyvnil terajšie kvality tohto výnimočného miesta.“

Ikona s oblúkovou arkádou
Ikonickým výrazovým prostriedkom spoločenskej časti bude oblúková arkáda s predsadenou stenou z drevených lamiel, tvarovo vzdialene pripomínajúcou viničné pivnice. Jej úlohou bude tienenie vnútorných priestorov multifunkčnej haly, ale aj vytvorenie prístreška na exteriérové posedenie.
Architektúra reštaurácie s penziónom má odľahčenú zasklenú hornú časť budovy s vykonzolovanou strechou, ktorá sedí na mohutnom dvojpodlažnom telese. Okná budú mať zaujímavé posuvné okenice. Oživia obálku budovy, lebo ubytovaní si ich môžu rôzne posúvať a tak „rozohrať“ fasádu penziónu.
Súčasťou návrhu sú pravé vinárske materiály: drevo, kameň, betón s príznačnou farebnosťou – od béžovej až po hnedú. Predbežne sa počíta s omietkou s hrubou nepravidelnou štruktúrou, typickou pre vinársky región. Keďže objekt je orientovaný prevažne na juh, sú navrhnuté fotovoltické panely, ako aj ďalšie ekologické prvky. Tvorcovia predpokladajú, že po získaní právoplatného stavebného povolenia by sa mohlo začať stavať ešte tento rok.
Vinárstvo Zobor
Lokalita: Kláštorská ulica, Nitra
Investor: Biskupské vinice Zobor
Architekt: A.M. architects – Richard Baláži, Boris Schultz, Štefan Vrabec, Livia Czikóova, Soňa Sokolovová
Počet izieb v penzióne: cca 45
Kongresová sála: 300 ľudí
Predpokladaná výška investície: 4,9 mil. €
Termín realizácie: 2026 – 2028












