Späť na článok
Nitra ako na dlani. Butikové vinárstvo na kopci nekričí o pozornosť, ale zaujme modernou architektúrou
5 / 9
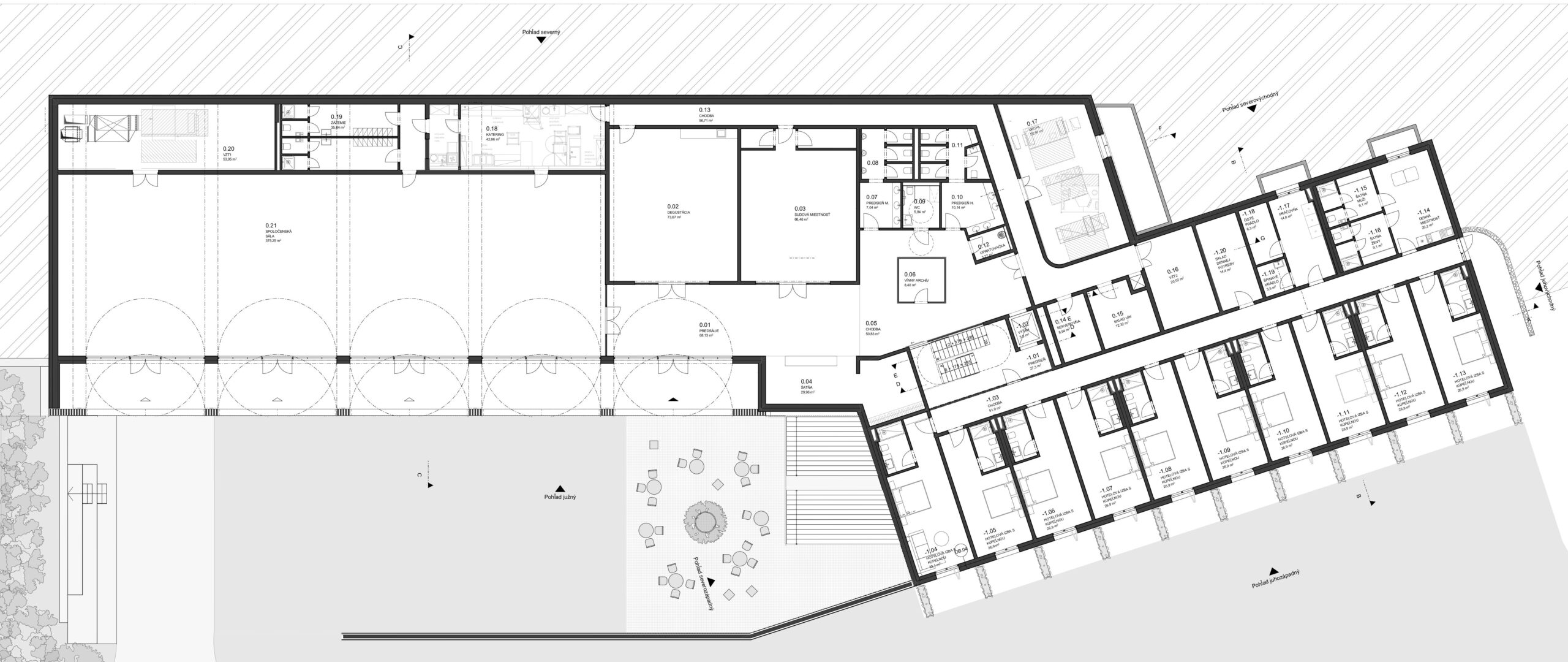
Vinárstvo Zobor, pôdorys 1.PP
Zdroj: A.M. architects