Hotel Lomnica sa pýši vlastnou galériou
Dlhé roky chátral a špatil Tatranskú Lomnicu. Príbeh najstaršieho fungujúceho hotela v Tatrách však pokračuje ďalej. Rekonštrukcia a prístavba mu priniesli novú krv a klientelu.
![]() |
Poznáte výhody Klubu ASB? Stačí bezplatná registrácia a získate sektorové analýzy slovenského stavebníctva s rebríčkami firiem ⟶ |
Hoci má hotel za sebou len čosi vyše mesiaca prevádzky, okolitá konkurencia na úrovni štyroch hviezdičiek a vyššie už spozornela. Do Vysokých Tatier prišiel hráč, ktorý má pridanú hodnotu – zrodil sa z najstaršieho hotela v Tatrách. Hotel Lomnica bol otvorený v roku 1894 podľa projektu architekta Gedeona Majunkeho (1854 – 1921) v štýle „tatranskej secesie“ a na dlhý čas nastavil štandardy luxusného ubytovania v regióne.
Trojposchodový hotel bol unikátny aj svojou konštrukciou a prirodzene sa stal národnou kultúrnou pamiatkou. Služby poskytoval do marca 1996, potom ho zatvorili. Objekt dve desaťročia chátral až ho pred tromi rokmi kúpil aj s pozemkom nový investor Mores Resort.
Historická hodnota
„Keď sme sa dostali na stavbu, tá už bola zakonzervovaná a vyčistená – investor ju totiž kúpil aj s projektom,“ hovorí hlavný architekt stavby Ing. arch. Pavol Franko. „Investor mal však iné predstavy. Jeho zámer bol vytvoriť z chátrajúceho objektu ubytovacie zariadenie – hotel so 67 ubytovacími jednotkami, reštauráciou, kaviarňou, kongresovými priestormi, wellnessom a multifunkčnými spoločenskými priestormi.
Apartmán Maximilián
A tak sme začali skicovať a prinášali alternatívy. Krok po kroku sme odhaľovali jednotlivé časti objektu a hľadali spôsob, ako ich citlivo spojiť s požiadavkami súčasnej klientely v Tatrách.“
Keďže išlo o národnú kultúrnu pamiatku, rekonštrukcia bola koordinovaná v spolupráci s Krajským pamiatkovým úradom Prešov. „Zachovali sme pôvodné konštrukcie a iné hodnotné prvky stavby, ktoré sme v určitej miere aj nechali prezentované,“ približuje Pavol Franko.
Celková situácia
„Dokonca v snahe o náhradu novodobých prvkov v interiéri sme zvolili typ alebo tvar konštrukcie viac zodpovedajúci dobe vzniku samotného objektu. Snažili sme sa o doplnenie chýbajúcich, odstránených, prípadne zdegradovaných častí prvkov fasády, ako sú napríklad hrazdené a výplňové konštrukcie.“
Dostavba priznáva tvar
Súčasná dostavba k historickej stavbe býva často architektonickým úskalím s nejasným výsledkom. Mala by byť sebavedomá, súčasná, ale aj komunikovať so susediacou históriou. To bol aj zámer architektov pri Hoteli Lomnica. Trojposchodová dostavba v tvare písmena „L“ sa nachádza vo východnej časti a je kolmá na pôvodný objekt.
Historická a moderná časť Hotela Lomnica vo večernej atmosfére
Priznáva súčasné tvaroslovie aj materiály, sleduje nároky energetickej efektivity. „Náš novotvar by mal evokovať tatranské štíty, kamene, skrátka, okolitú prírodu,“ hovorí Pavol Franko. „Dopĺňali sme vertikály, ktoré mali evokovať tatranské stromy – hľadali sme optimálny tvar, ktorý mal kontrastovať s tým, čo tam už bolo. Tak, aby si každý návštevník už zďaleka povedal: Áno, toto je Hotel Lomnica, ktorý si pamätám a mám s ním príjemné zážitky.“
![]() |
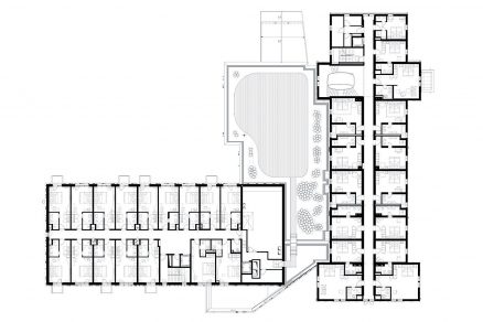
| Pôdorys 1. NP |
Obe časti objektu, moderná a historická, sa spájajú v prechodovej časti, v ktorej sú na 1. NP a 2. NP umiestnené spoločenské priestory určené pre hotelových hostí. V novej časti sú okrem ubytovacích kapacít umiestnené i technologické a skladové priestory. Na 1. PP sa nachádzajú garážové státia a technické priestory.
![]() |
| Pôdorys 3. NP |
Hotel ako galéria
Interiér vystihuje investorský zámer a cieľovú skupinu hostí: noblesa a komfort. Čo je však príjemné, nezabúda ani na nostalgickú romantiku prostredia a udržal si kultivované narábanie pri vytváraní zážitku. Je cítiť, že investor neškrtil tok financií, ale architekti to nezneužili a udržali sa v štýle. „Z hľadiska interiéru bolo zadanie od investora pomerne jasné – odlíšiť aj vo vnútri hotela rekonštruovanú časť od pristavanej a vytvoriť „zážitkový“ hotel, kde hosť môže precítiť viacero atmosfér,“ hovorí autorka interiéru Hotela Lomnica Ing. arch. Katarína Hučková.
Schodisková hala na 2. nadzemnom podlaží
„Aj keď bude hosť v hoteli ubytovaný desaťkrát, môže mať k dispozícii inú izbu. Ďalším kritériom bolo, že ide o hotel s galériou, kde originály hodnotných obrazov budú bežne dostupné každému návštevníkovi hotela.“
Potvrdzuje to aj riaditeľka Hotela Lomnica Zuzana Kovaľová, ktorá hovorí, že „hotel je sám osebe galériou,“ chodby s izbami to potvrdzujú.
Východný pohľad
Všade sa nachádzajú diela významných slovenských či zahraničných maliarov. Je tam dokonca vlastná Galéria Lomnica, pričom úvodnou výstavou je expozícia maliara Jána Hálu. Všadeprítomné francúzske zrkadlá odrážajú nastavené parametre hotela.
Západný pohľad
Apartmány majú názvy po kráľovských osobnostiach z Rakúska-Uhorska, a tak objavujeme Máriu Teréziu, Rudolfa, Maximiliána, Ferdinanda či Máriu Antoinettu, v jedálenskej časti je reštaurácia a kaviareň. V historickej časti hotela, priamo pod originálnymi klenbami z roku 1893, je reštaurácia s vinárňou, „gentlemans club“ a hráčsky salónik. Hotel poskytuje denne službu concierge či vlastný hotelový obchodík s originálnymi suvenírmi.
Štít na východnej historickej časti Hotela Lomnica – v pozadí Lomnický štít.
Cieľ Hotela Lomnica je neprehliadnuteľný: vyvolať zážitok a pritiahnuť návštevníkov. Miera súhlasu s použitými vyjadrovacími prostriedkami sa síce môže odvíjať od individuálneho vkusu, ale isté momenty sú nespochybniteľné. Stavba má svoju atmosféru a architekti pristupovali s porozumením k pôvodnému autorovi.
Pozdĺžny rez
V maximálnej miere sa snažili zachovať existujúce veci a „predstaviť si, čo by asi urobil on v tejto dobe.“ (P. Franko). V neposlednom rade sa podarilo zachrániť významnú pamiatku v našom prírodnom magnete a vdýchnuť jej nový život. A to nie je málo.
![]() |
| Priečny rez, nová časť |
![]() |
| Priečny rez, historická časť |
HOTEL LOMNICA
Miesto: Tatranská Lomnica
Investor: Mores Resort a. s.
Autori návrhu: Ing. arch. Pavol Franko, Ing. arch. Radoslav Grečmal,
Ing. Peter Kopčák, Ing. arch. Miroslav Prokopič
Generálny projektant: GFI, a. s.
Interiér: GFI, a. s., Ing. arch. Katarína Hučková
Projekt: Ing. Marián Michalák, Ing. arch. Rastislav Kňava, Ing. Radovan Kyjovský, Ing. Rastislav Dolinič
Spracovanie projektu: 2014 – 2015
Realizácia: 6/2015 – 12/2016
Slávnostné otvorenie: 27. 1. 2017
Celkové investície: 7,5 mil. eur
Úžitková plocha: 5 960,03 m2
Podlažná plocha: 7 066,31 m2
Ubytovacie kapacity
Počet hotelových izieb: 64
Celkový počet hotelových apartmánov: 3
Počet lôžok: 136
TATRANSKÁ LOMNICA
TEXT: ĽUDOVÍT PETRÁNSKY
FOTO: HOTEL LOMNICA,
DOKUMENTÁCIA: GFI
Článok bol uverejnený v časopise ASB 1-2/2017.

























