Záujem o drevostavby časom rastie.
Aby sme mohli byť moderná up-to-date statická kancelária, divízia drevených konštrukcií musí byť neoddeliteľnou súčasťou nášho programu. V tejto sekcii našej firmy pracujú inžinieri špecializovaní na drevostavby.
![]() |
Poznáte výhody Klubu ASB? Stačí bezplatná registrácia a získate sektorové analýzy slovenského stavebníctva s rebríčkami firiem ⟶ |
Medzi našimi zákazkami sa nájdu prístrešky, altánky, rodinné domy, chaty, ako klasické tesárske krovy, tak väzníkové strechy, halové objekty, aj rekonštrukcie.
Počas praxe sa stretávame s rôznymi materiálmi a konštrukčnými systémami. Jeden z najobľúbenejších riešení hlavne pre rodinné domy sú panely z krížom lepeného dreva (CLT cross-laminated timber). Sú to panely, ktoré predstavujú plošné prvky poskladané z tenkých lamiel lepených kolmo na seba.
Najčastejšie sa navrhujú v hrúbkach od 100 mm do 160 mm, v závislosti od pohľadovosti, stupňa požiarnej ochrany a statickej podstaty.
Pre návrh a posúdenie CLT prvkov využívame prídavný modul XLM výpočtového softvéru AxisVM, ktorý používa vrstvené ortotropné 2D konečné prvky k určeniu vnútorných síl a napätí v každej vrstve.
Pri rodinnom dome Močenok sme zabezpečili realizačný projekt.
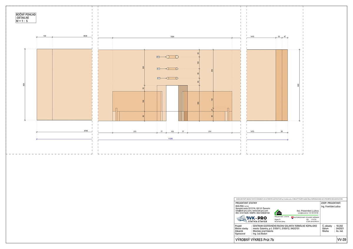
Definitívne hrúbky a typy prípojov CLT stenových, stropných a strešných panelov boli navrhnuté po niekoľkých iteráciách. Súčasťou dokumentácie boli tiež výkresy prípojov a výkaz spojovacieho materiálu.



Druhú najväčšiu skupinu drevených rodinných domov tvoria stĺpikové konštrukcie, známe ako two-by-four systémy, alebo rámové konštrukcie. Pri týchto typoch konštrukcií sú nosné drevené stĺpiky, horné a spodné vodorovné prvky a rozperky z vysušeného reziva.
Pre obvodové steny používame prierezy 60/140 mm a 80/140 mm, pre nenosné steny zase prierezy 60/100 mm. Aby bola zachovaná priestorová tuhosť domu, je zavetrenie riešené veľkoplošnými OSB doskami min. hrúbky 15 mm. Preto sa stĺpiky ukladajú v 0,625 m rastri. Aj v prípade týchto konštrukcií sa zostaví 3D výpočtový model v softvéri Axis VM. Posúdený a vyhodnotený je každý prvok samostatne, ale aj kompletná budova ako celok.

Naša firma sa zaoberá aj vypracovaním výrobnej dokumentácie väzníkových krovov, ktorých podstata je v priehradových väzníkoch spojených doskami s prelisovanými tŕňmi. Výrobné dokumentácie sme už riešili aj pre rôzne typy rámových, halových objektov. Pri takýchto typoch konštrukcií pracujeme s vysokými lepenými nosníkmi a vieme dodať kompletnú dielenskú dokumentáciu s vyriešenými a vykreslenými prípojmi.




Po úspešnom vyhodnotení výsledkov a posúdení nosných prvkov sa vytvorí 3D konštrukčný model v špecializovanom programe pre drevostavby. SEMA softvér nám umožňuje presné namodelovanie celej drevenej konštrukcie aj s opracovaniami.
Z tohto konštrukčného modelu sa potom dá vyexportovať BIM model v rôznych typoch súborov s priradenými informáciami prvkov, ako objem, prierezové rozmery, materiál, pohľadovosť spolu s presným výkazom dreva.

Finálna projektová dokumentácia, časť statika drevených konštrukcií zahŕňa výkresy tvaru, výkazy materiálu, technickú správu so statickým posúdením, v prípade realizačného projektu dodáme aj výkresy prípojov, výkresy výrobnej dokumentácie.
Každý náš partner dostane od nás 3D model vo formáte IFC, vďaka čomu je zabezpečená úzka spolupráca s architektmi, zhotoviteľmi, investormi počas projektovania, aj počas realizácie.
Ing. Lea Bodon
Divízia drevené konštrukcie
Zdroj: PR článok BVK-PRO, s.r.o.




