Nízkoenergetický rodinný dom
Nízkoenergetický dom na Prahe 6 vznikol na základe kompletnej prestavby a výrazného rozšírenia dvojdomu zo šesťdesiatych rokov 20. storočia. Klient kúpil polovicu domu vo veľmi zlom stave na svahovitom pozemku so zaujímavým výhľadom na severnú časť Prahy. Zadanie bolo takéto: vytvoriť moderný dom s dvoma bytmi, ktorý bude po technickej a energetickej stránke maximálne úsporný.
![]() |
Poznáte výhody Klubu ASB? Stačí bezplatná registrácia a získate sektorové analýzy slovenského stavebníctva s rebríčkami firiem ⟶ |
V pôvodnej stavby a polovici sivého kubusu sa nachádza prvý byt, riešený pre univerzálneho klienta. Tento byt má tri podlažia a strešnú, čiastočne zelenú terasu. Obývačka je vzhľadom na svahovitý terén a prístup svetla z juhu umiestnená až na prvom poschodí, pričom svetlo do nej privádza pochôdzny svetlík v strede dispozície. Druhý byt, v ktorom býva klient, je riešený v nadväznosti na svahovitý terén, ktorý v tejto časti pozemku ostal nevyrovnaný a nie je zastavaný skleníkmi a prístavbami. Dispozičné riešenie tak reaguje na svah, takže obývacia izba na výšku 1,5 podlažia sa nachádza nad vstupnou časťou do domu. Vznikol tak veľkorysý, dobre osvetlený priestor, ktorý sa otvára proti svahu do záhrady. Aj tu je na hornom podlaží strešná terasa.
Hlavným prvkom interiéru v oboch bytoch sú oceľové schodiská. Z hľadiska tvaru je každé riešené inak, ich forma sa však zhoduje. Ide o nabielo nalakované schodisko so zalamovanou subtílnou nástupnicou, doplnené výrazným zábradlím tvoreným horizontálnymi profilmi z pásovej ocele. V byte investora sa toto schodisko opticky vznáša nad prvými dvoma ramenami, ktoré sú „ťažké“ a ich zábradlie je riešené ako panel z dierovaného plechu.
Ide o murovanú nízkoenergetickú stavbu s výpočtovou ročnou potrebou tepla asi 33 kWh/(m2 . a). O vykurovanie sa stará kotol na peletky v kombinácii s termosolárnymi panelmi a integrovaným zásobníkom, konvektorové vykurovacie telesá sú umiestnené pod francúzskymi oknami. V oboch bytoch je nainštalované riadenie vetranie s rekuperáciou tepla.
Rodinný dom v Prahe – rekonštrukcia a prístavba
architekt: Ing. arch. Martin Čeněk / martin cenek architecture
klient: súkromná osoba
realizácia: Praha, 2012
Fasáda: Kombinácia kontaktného zateplenia s prefarbenou omietkou (biela, sivá) a prevetrávanej fasády s obkladom z dosiek Cetris v prírodnom neupravenom vyhotovení
Vonkajší bazén západného bytu
Konštrukčný systém: Murovaný systém Heluz, tepelnoizolačné tvárnice 250 mm (obvodové murivo), zvukovoizolačné (deliaca medzibytová stena), systémové stropy
Severná strana domu podvečer
Plochá strecha, na nižších strechách kombinácia drevenej terasy a extenzívnej zelene. Strecha nad 2. NP – asfaltové pásy
Vonkajšie terasy sú drevené, z dreviny massaranduba
Interiér prvého bytu
Oceľové schodiská sú hlavným prvkom oboch bytov
Pohľad na schodisko z obývacej izby druhého bytu
Pôvodný stav, pohľad z ulice
Pôvodný stav, pohľad zo záhrady
Severný pohľad
Južný pohľad
Priečny rez
Pozdĺžny rez
Pôdorys 1. PP
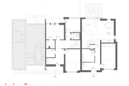
Pôdorys 1. NP
Pôdorys 2. NP
Situácia
-vb-
zdroj: autorská správa, Ing. arch. Martin Čeněk































