Centrála Rossignol
Globálna centrála jedného z najväčších výrobcov lyží a lyžiarskeho vybavenia nemohla vyzerať ako stereotypná kancelárska budova. Jej prepojenie s prírodou, horami a snehom sa priamo ponúkalo, aby ho odtlačili do jej formy. Stavba v regióne Rhône-Alpes tak odráža okolité vrcholky, navyše, poskytuje tvorivé prostredie na vývoj vybavenia pre vrcholových športovcov.
![]() |
Poznáte výhody Klubu ASB? Stačí bezplatná registrácia a získate sektorové analýzy slovenského stavebníctva s rebríčkami firiem ⟶ |
Ambíciu vytvoriť analógiu prirodzene vznikajúcim tvarom hôr a snehových závejov mali aj architekti z francúzskej kancelárie Hérault Arnod Architectes v prípade sídla spoločnosti Rossignol. Budova stojí uprostred dokonale rovnej planiny obklopenej horami v poľnohospodárskej oblasti pri diaľnici z Lyonu do Grenoblu. Jej architektúra akceptuje špecifikum tohto miesta a nie je ani tak vysoká ako skôr rozľahlá. Už z diaľky však nezaprie, že má asi blízko k vrcholkom hôr, lebo jej strecha nápadne pripomína obrys alpských hrebeňov.
I keď sa architekti nechali viesť okolitou panorámou hôr, zjazdovkami a ľadovcom, stavba nie je doslovným postmodernistickým prevedením funkcie do formy. Naopak. Jej organický tvar je prekvapujúco minimalistický, a zároveň rafinovaný. Skôr naznačuje, než zobrazuje. Možno aj vďaka tomu zapadá do okolitej krajiny a pôsobí veľmi nenápadne. O to väčšie prekvapenie návštevníka čaká, keď príde bližšie.
![]() |
![]() |
Pod jednou strechou
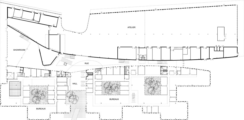
Rozsiahla strecha pokrýva tri typy priestoru – výrobný závod na jednej strane, ďalej kancelárie, výskumné a dizajnérske oddelenie na strane druhej a nakoniec priechod medzi týmito dvomi priestormi, ktorý je v rozšírenej časti zakončený showroomom.
Na strane otočenej k diaľnici fasáda plynule nadväzuje na strechu, ktorá najprv stúpa k najvyššiemu bodu, aby opäť zostúpila na juhozápadnej strane cez kancelárske priestory. Tam je prekladaná terasami s vysadenými brezami, ktoré umocňujú dojem prepojenosti architektúry a prírody. Ako sa mení a rastie príroda, môže rásť aj architektúra. Architekti už od začiatku počítali s procesom rastu, a preto v prípade budúceho rozšírenia stavby bude môcť strecha plynulo nadviazať na prístavbu bez narušenia rovnováhy a identity projektu.
Na najvyššej úrovni sa strecha otvára do krajiny veľkou zasklenou stenou, za ktorou je jedáleň pripomínajúca reštauráciu, ktorá sa nachádza na lyžiarskom svahu. Z jedálne je panoramatický výhľad na oblohu aj hory. Priľahlá veľká strešná terasa je k dispozícii na obed pod šírym nebom, chránená pred hlukom z diaľnice.
Nielen forma
Na vonkajšie opláštenie boli použité iba dva materiály: drevo (prírodný modročervený smrek) a sklo. Konštrukcia vyrobená z ocele je ako organická kostra, ktorá naznačuje tvar s jeho mnohými prehýbanými plochami.
Budova je navrhnutá tak, aby sa minimalizoval jej dosah na životné prostredie. Interiér je dobre izolovaný a chránený pred letným slnkom drevenou strechou, pričom teplo vyrobené dielenskými strojmi sa opäť vracia do tepelnej siete. Kancelárie sa prirodzene vetrajú pomocou automaticky otvárateľných okien. Súlad s prírodou tak vytvára nielen forma, ale aj šetrné zaobchádzanie so zdrojmi.
| CENTRÁLA ROSSIGNOL Miesto: Saint Jean de Moirans Autor: Hérault Arnod Architectes Investor: Skis Rossignol SAS Súťaž: 2006 Realizácia: 2009 Plocha: 11 572 m2 |
TEXT: KATEŘINA KOTALOVÁ
FOTO: ANDRÉ MORIN, MARIE CLÉRIN
Článok bol uverejnený v časopise ASB.





















