Obnova budov: Minulé a súčasné trendy obnovy plochých striech
Na obnovu plochej strechy možno použiť viaceré riešenia. Strecha po obnove by mala spĺňať tepelnotechnické požiadavky, požiadavky na vyspádovanie strechy a ďalšie aspekty, ktoré zabezpečia jej funkčnosť a dlhú životnosť.
![]() |
Poznáte výhody Klubu ASB? Stačí bezplatná registrácia a získate sektorové analýzy slovenského stavebníctva s rebríčkami firiem ⟶ |
V súčasnosti je v Česku a na Slovensku približne 102 000 prevažne 4- až 8-podlažných panelových bytových domov a už 30 rokov sa panelové bytové domy takmer vôbec nestavajú. Ich výstavba začala v 60. rokoch minulého storočia. Súčasťou veľkej rôznorodosti jednotlivých variantov panelových systémov bolo vyhotovenie samotných plochých striech, ktoré mnohokrát nezodpovedalo typovej výkresovej dokumentácii alebo sa čiastočne upravilo.
V súčasnosti je nevyhnutnou súčasťou každej opravy spracovanie projektovej dokumentácie s návrhom zodpovedajúceho riešenia vrátane špecifikácie použitých materiálov a výberu realizačnej firmy. Ak je realizačná firma zároveň aj projektovou firmou so špecializáciou v oblasti plochých striech, dá sa predpokladať, že obnova strechy bude úspešná.
Pre životnosť zvolenej opravy je určujúca životnosť použitej hydroizolácie, a to tak životnosť predpokladaná, deklarovaná výrobcom, ako aj životnosť reálna, overená po zabudovaní.
Pri povlakových krytinách sa možno stretnúť s fóliami na báze PVC, TPO alebo EPDM s hrúbkou od 1,2; 1,5;1,8 a 2,28 mm a s asfaltovanými modifikovanými pásmi s hrúbkou od 3 do 5,5 mm. Predpokladaná životnosť fólií PVC je do 20 rokov, fólií TPO do 25 rokov a fólií EPDM až do 50 rokov. Pri asfaltovaných modifikovaných pásoch je to 25 rokov. Reálna životnosť je však mnohokrát, žiaľ, polovičná. Pri fólii EPDM sa reálna životnosť overiť nedá, pretože ich prvé realizácie sú spred 30 rokov.
Povlakové hydroizolácie z polyuretánových nástrekov sa v súčasnosti už takmer vôbec nerealizujú a stierkové opravy s výstužnou tkaninou sa pre vysokú cenu používajú veľmi obmedzene. Pri plechových krytinách je potom určujúci druh a hrúbka povrchového laku, kde sa pri použitom polyuretánovom laku s hrúbkou 50 mikrometrov predpokladá životnosť viac ako 50 rokov.
Na základe našich mnohoročných skúseností patria medzi minulé a súčasné trendy opráv plochý striech tieto opravy:
- Oprava plochej strechy položením novej povlakovej krytiny (hydroizolácie) bez dodatočného zateplenia a bez zmeny sklonu plochej strechy. Tento spôsob predstavoval v minulosti najčastejší spôsob opravy predovšetkým z ekonomického hľadiska. Tento najlacnejší variant však nerieši strechu z hľadiska úspor energie a z tepelnotechnického hľadiska ani stojacu vodu na streche a ostatné v minulosti akceptované nedostatky. Pri použití PVC fólie sa predpokladá predĺženie životnosti maximálne o 15 rokov.
- Oprava plochej strechy položením novej povlakovej krytiny (hydroizolácie) so zateplením a bez úpravy sklonu plochej strechy. V súčasnosti ide o najčastejší variant opravy, ktorá však rieši len úsporu energie a tepelnotechnické hľadisko bez odstránenia stojacej vody na streche. Pri použití PVC fólie sa predpokladá predĺženie životnosti maximálne o 15 rokov.
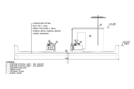
- Oprava plochej strechy položením novej povlakovej krytiny (hydroizolácie) so zateplením a s úpravou sklonu plochej strechy (obr. 1). Tento variant rieši už opísané problémy. Dodržanie sklonu krytiny min. 3 % je však ťažko realizovateľné, a preto je často nové vyspádovanie realizované iba čiastočne a kaluže sa v obmedzenej miere akceptujú. Pri použití PVC fólie sa odhaduje predĺženie životnosti maximálne o 15 až 20 rokov.

- Oprava plochej strechy s odstránením všetkých pôvodných vrstiev a s vyhotovením všetkých nových vrstiev s normalizovaným sklonom. Ide pravdepodobne o najdokonalejší variant opravy pri zachovaní plochej strechy. Rieši úsporu energie, tepelnotechnické požiadavky, nové vrstvy plochej strechy vykazujú požadované vlastnosti a opravená plochá strecha má normalizovaný sklon.
Novodobým problémom je však likvidácia odstránených vrstiev, ktoré sa bez recyklácie ukladajú na skládku, vo väčšine prípadov ako nebezpečný odpad. Samotné odstránenie vrstiev enormne zvyšuje náklady na vyhotovenie novej skladby. Ďalšie náklady potom vzniknú so zabezpečením proti zatečeniu počas realizácie. Pri použití PVC fólie sa životnosť opravenej strechy predĺži maximálne o 15 až 20 rokov.
- Oprava strechy s realizáciou novej plochej strechy nad existujúcou plochou strechou vytvorením dvojplášťovej vetranej strechy (obr. 2 a 3). Tento variant rieši prípadnú zabudovanú vlhkosť v existujúcej plochej streche a aj úsporu energie vrátane odstránenia stojacej vody. Veľkou nevýhodou je nevyhovujúce vetranie vo vzduchovej medzere, obmedzená kontrolovateľnosť pod krytinou a nemožnosť dodatočného zateplenia. Pri použití PVC fólie sa predpokladá predĺženie životnosti strechy maximálne o 15 až 20 rokov.
Obr. 2 Rez strešným plášťom dvojplášťovej strechy | Zdroj: Střechy 92, s. r. o. - Oprava strechy s realizáciou novej šikmej strechy nad existujúcou plochou strechou vytvorením dvojplášťovej vetranej strechy (obr. 4 až 6). Pri použití tohto variantu sa zmení plochá strecha na šikmú a odvetranú strechu. Ide o progresívne riešenie s viacerými výhodami:
- záruka výrobcu krytiny na funkčnosť je 50 rokov a životnosť celej opravy 50 a viac rokov,
- nejde o najdrahšiu opravu, po 15 až 20 rokoch sa stáva toto riešenie najlacnejším variantom,
- je realizovateľná na každý panelový systém, pretože staticky nezaťažuje strešné panely,
- má vysoký stupeň bezpečnosti proti účinkom sania vetra,
- strešná krytina je kontrolovateľná zo všetkých strán,
- existujúce vrstvy strešného plášťa sa ponechávajú, čím sa nezaťažuje životné prostredie pri ich odstraňovaní,
- odkvapový systém vo vnútri budovy umožňuje budúce zachytenie dažďovej vody,
- šikmá strecha je ideálna pre budúcu montáž fotovoltických panelov,
- samotnou montážou aj bez zateplenia dochádza k výraznému zlepšeniu vnútorného prostredia v horných bytoch,
- ponúka možnosť dodatočného zateplenia plochej strechy kedykoľvek v budúcnosti,
- vytvorením tzv. inverznej strechy nedochádza ku kondenzácii vodnej pary v pôvodnej skladbe,
- dochádza k ochrane stavebných prvkov v pôvodnom priestore,
- materiál strešnej plechovej krytiny je recyklovateľný, nemusí sa ukladať na skládke,
- nevýhodou je potreba vybavenia stavebného povolenia spojená so schvaľovaním na úradoch.
Fotovoltika na strechách panelových domov
Fotovoltické elektrárne pre bytové domy predstavujú v súčasnosti aktuálnu tému. Pri rozhodovaní, či umiestniť na bytový dom fotovoltické panely, je potrebné vždy zvážiť viaceré aspekty. A to nielen cenu samotnej fotovoltiky, ale aj stav strechy, na ktorú sa montáž plánuje realizovať. Fotovoltické panely možno inštalovať tak na ploché, ako aj šikmé strechy bytových domov.
Montáž fotovoltických panelov na plochú strechu bytového domu
Ako by mala vyzerať plochá strecha vhodná na montáž fotovoltiky?
- Celá plochá strecha má byť správne vyspádovaná, bez tvorby kaluží.
- Zvyšková životnosť krytiny je 25 a viac rokov, tak ako je minimálna predpokladaná životnosť fotovoltických panelov. Tým sa zabezpečí, že nebude potrebná drahá demontáž fotovoltických panelov počas ich životnosti.
- Strešné panely dokážu preniesť ďalšie priťaženie od fotovoltických panelov. Na plochú strechu je potrebné umiestniť panely v sklone pomocou špeciálnych konštrukcií, ktoré sú vystavené značným silám od účinkov vetra. Tieto konštrukcie je preto nevyhnutné ukotviť mechanicky priamo na existujúcu hydroizoláciu plochej strechy alebo ich dostatočne priťažiť. Mechanické ukotvenie cez strešnú krytinu do betónových panelov predstavuje vytvorenie veľkého počtu otvorov (priestupov) v strešnej krytine. Nielen z tohto dôvodu sa fotovoltické panely zvyčajne priťažujú betónovými závažiami. Ak sa rozhodneme pre toto riešenie, je potrebné staticky posúdiť únosnosť pôvodných strešných panelov.
- Tuhosť strešného plášťa je dostatočná. Strešný plášť musí byť dostatočne tuhý, aby nedochádzalo k zatlačeniu konštrukcií do plochej strechy. Mohlo by tak dochádzať k vytváraniu kaluží a v extrémnom prípade k poškodeniu krytiny (predovšetkým pri zateplených strechách).
- Vyhotovenie detailov na streche je bez defektov.
- Cez strechu nepreteká voda a v strešnom plášti nie je zabudovaná vlhkosť. Po vizuálnej kontrole plochej strechy z exteriéru je potrebná kontrola samotnej skladby pod hydroizoláciou, a to pomocou kontrolných sond. Okrem vlhkostných parametrov sa kontroluje aj skutočná skladba jednotlivých vrstiev, či je v súlade s dostupnou dokumentáciou a či jednotlivé vrstvy môžu ešte plniť svoju funkciu.
- Strešná krytina vyhovuje z hľadiska protipožiarnych predpisov. Požiadavkám na protipožiarnu bezpečnosť musí vyhovovať nielen samotná hydroizolácia, ale celá skladba strechy na základe vykonaných protipožiarnych skúšok. Strecha musí byť klasifikovaná ako BROOF(t3), čo znamená, že je vhodná do požiarne nebezpečného priestoru.
- Na streche je minimum prekážok a prvkov, ktoré by mohli spôsobovať tienenie fotovoltických panelov. Medzi najčastejšie prekážky patria strojovne výťahov a vzduchotechnické jednotky. Ak je strecha veľmi výškovo členitá, je mnohokrát na streche veľmi náročné rozmiestniť požadovaný počet panelov a zabezpečiť dostatočné slnečné žiarenie bez tienenia.
Montáž fotovoltických panelov na šikmej streche bytového domu
Inštalácia fotovoltických panelov na šikmú strechu rieši uvedené problémy, ktoré môžu vznikať pri plochých strechách. Okrem toho je vo všeobecnosti známe, že na šikmú strechu možno umiestniť takmer 2x viac fotovoltických panelov ako na pôvodnú plochú strechu. Zároveň je pri šikmej streche vyriešený aj problém so spádovaním, so zvyškovou životnosťou krytiny, statikou panelov, s tuhosťou hornej vrstvy hydroizolácie, kvalitou vyhotovenia detailov, so zabudovanou vlhkosťou, s požiarnou odolnosťou hydroizolácie a prekážkami.
TEXT: Ing. Pavel Hanáčík, Ing. Josef Slánský, Střechy 92, s. r. o.
FOTO: Střechy 92, s. r. o., Shutterstock













