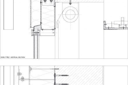
Detail riešenia metalickej perforovanej fasády
Hľadali sme spôsob, ako členitý pôdorys a rôzne výšky obvodového plášťa zjednotiť do logického celku,“ vysvetľuje architekt Martin Rudiš dôvod, prečo zvolili predsadený kovový plášť fasády, ktorý sa stal hlavným výrazovým prvkom exteriéru.
![]() |
Poznáte výhody Klubu ASB? Stačí bezplatná registrácia a získate sektorové analýzy slovenského stavebníctva s rebríčkami firiem ⟶ |
„Dôležité bolo, aby fasáda svojím materiálovým a technickým stvárnením prezrádzala obsahovú náplň budovy,“ hovorí architekt. Pôsobí ľahko a zároveň jednoznačne. Čiastočnú transparentnosť sme dosiahli perforáciou. Jemná textúra dodáva stavbe krehkú a odľahčenú estetiku.“
Štruktúru fasády tvoria kazety vyrobené z hliníkového perforovaného plechu so špeciálnou striebornou farbou. Idea formálneho stvárnenia plášťa vznikla úplne náhodou pri počítačovom spracovaní digitálnej fotografie juhočeského lesa. Vďaka posterizácii vytvorili kmene stromov plochu s rôzne intenzívnymi farebnými zvislými pruhmi. Čiernobiele spracovanie tejto štruktúry bolo potom radikálnou skratkou transformované na zapamätateľnú výtvarnú formu.
Hvezdáreň a planetárium Brno
Miesto: Kraví hora, Brno
Architekt: Martin Rudiš
Spoluautori: Alena Stehlíková, Martin Komárek
TEXT: Kateřina Kotalová
Foto: Filip Šlapal, Martin Rudiš
Dokumentácia: Martin Rudiš










