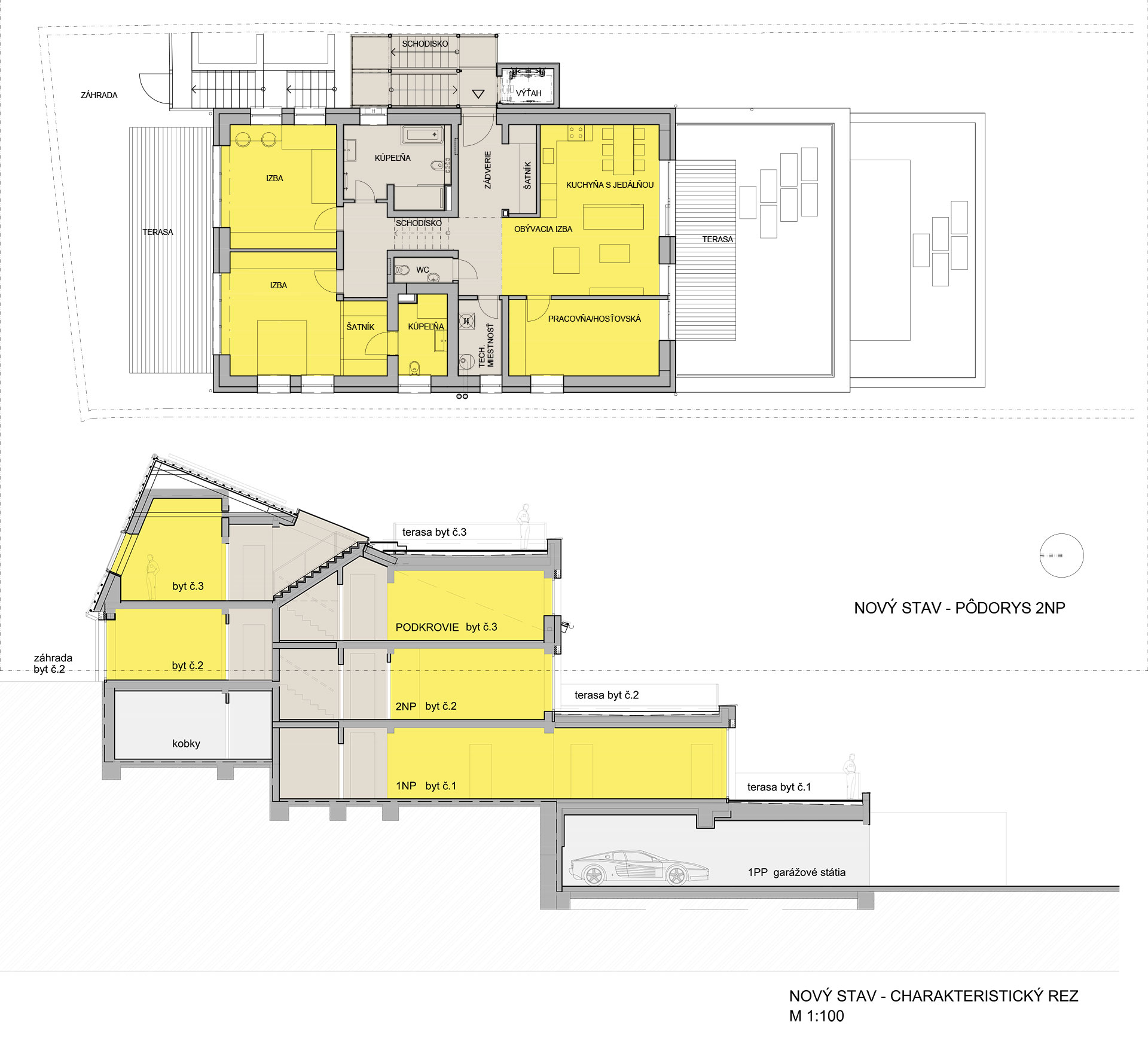
Prestavba a prístavba rodinného domu
Rodinný dom z roku 2004 v blízkosti malebných Jezuitských lesov v Karlovej Vsi prešiel rozsiahlymi rekonštrukčnými prácami. Tento viacgeneračný dom s podkrovím a garážovým prístreškom sa podrobil komplexnej prestavbe, ktorá z neho vytvorila tri samostatné bezbariérové bytové jednotky plné komfortu.








Mesto
Bratislava - Karlova Ves
Stav
Dokončené
Investícia
1,61 mil. €
Developer
súkromná osoba
Rok začiatku
2023
Rok dokončenia
2024
Architekt
CITYPROJEKT - Pavol Citovický, Stanislav Cesnak
Segment
Bývanie