Výstavná sieň ako stavebnica
V blízkosti námestia Schlossplatz v centre Berlína, priamo na brehu rieky Spréva, vznikla netradičná výstavná sála súčasného umenia. Pozoruhodná je predovšetkým tým, že sa v nej snúbi jednoduchá montovateľná konštrukcia s umením, ktoré sa premieta už vo fasáde objektu. Na tomto mieste bude stáť dočasne, a to dva roky od svojho slávnostného otvorenia v októbri 2008. Jej cieľom je vytvoriť prechodnú platformu na prezentovanie tvorby miestnych umelcov. Autorom nenáročnej, ale neprehliadnuteľnej haly je rakúsky architekt Adolf Krischanitz.
![]() |
Poznáte výhody Klubu ASB? Stačí bezplatná registrácia a získate sektorové analýzy slovenského stavebníctva s rebríčkami firiem ⟶ |
Hala zodpovedá experimentálnemu konceptu Adolfa Krischanitza. Tento tvorca v rodnej krajine rozvinul myšlienku výstavby galérií ako umeleckých diel. Jeho víziou bolo osadiť na námestí Schlossplatz prostú kontajnerovú konštrukciu, ktorej exteriérové steny splnia rovnaký účel ako výstavné miestnosti galérií. Fasády preto možno využiť ako „plátno“ pre nové a nové umelecké stvárnenie. Umenie sa vďaka tomu dostáva do interakcie s okolitým prostredím a vytvára ostrý kontrast v porovnaní s tradičnými formami komunikačného dizajnu presýteného komerčnými obsahmi.
Súčasné fasádne vyhotovenie umeleckej haly v Berlíne je výsledkom projektu Gerwalda Rockenschauba, rakúskeho umelca, ktorý žije a pracuje v Berlíne. Do okolitého prostredia sú zasadené motívy abstraktných bielych oblakov na žiarivomodrom podklade. Objekt svojím provokatívnym vonkajším stvárnením aj umiestnením v historickej časti jasne dáva najavo, že na toto miesto nepatrí a že ide o provizórny status.
Jednoduchosťou hmoty však na druhej strane poukazuje na svoju neutralitu, keďže vznikol na mieste bývalého Paláca republiky, parlamentu niekdajšej Nemeckej demokratickej republiky. Korene projektu haly siahajú až k výstave s názvom 36 × 27 × 10, ktorá sa konala ešte v decembri roku 2005. Stretli sa na nej medzinárodne pôsobiaci berlínski umelci. Legendárna výstava, zameraná na tvorbu berlínskej proveniencie, vyvolala debatu o výstavbe novej umeleckej galérie v hlavnom meste Nemecka.

Výstavba
Objekt s celkovou podlažnou plochou 600 m2 vytvorili z prefabrikovaných prvkov, čo súvisí najmä so snahou o ekonomicky výhodné krátkodobé riešenie s minimálnym časom výstavby, nízkymi finančnými nákladmi, ale predovšetkým možnosťou halu jednoducho rozobrať a postaviť na inom mieste.
Výstavná galéria je v podstate jednoduchou drevostavbou s vonkajšou fasádou z vláknocementových panelov. Kubus má rozmery 20 × 56,25 × 11 metrov. Jeho základná konštrukcia pozostáva z laminovaných drevotrieskových dosák. Stabilnú oporu haly vytvárajú obvodové základy, na ktoré sa pomocou žeriava nasadil rám priehradovej nosnej konštrukcie. Steny sa vyrobili zo 100 samostatných montovateľných konštrukčných prvkov so šírkou 2,5 a výškou 11 metrov.

V priehradovej konštrukcii sa medzipásové prúty napojili na prebiehajúci pás nosníka tak, že zvierajú tupý uhol. Na styčných bodoch majú drevené nosníky drážky s hĺbkou 160 mm, do ktorých sa zasunul styčníkový plech s hrúbkou 1 až 1,75 mm. Vrstvy z drevených a plechových pásov sa nakoniec spevnili klincami.

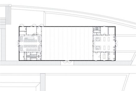
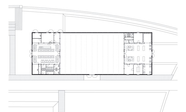
Vďaka tomu možno na steny výstavných priestorov zavesiť aj ťažké umelecké diela. Ako prekrytie vonkajšej fasády sa na základnú drevenú konštrukciu upevnili desaťmilimetrové dosky z tvrdeného cementu, ktoré pre svoju pevnosť predstavujú ďalší dôležitý stabilizačný prvok stavby. Dispozičné riešenie objektu je rovnako ako konštrukčný princíp veľmi jednoduché. Vstup vedie priamo do foyer s pokladňou, kníhkupectva a menších miestností v okrajových častiach stavby, v ktorých sa nachádzajú kancelárie, zasadačky, šatne a sklady.
Výstavné priestory so svetlou výškou 9 metrov susedia s foyer. Južná časť sa vymedzila kaviarňou s kapacitou 100 miest, kuchyňou, zásobovaním a toaletami. Nad nižšími miestnosťami sa v troch úrovniach nainštalovali vzduchotechnické a klimatizačné zariadenia. Berlínska sieň súčasného umenia je z koncepčného aj konštrukčného hľadiska jednoduchou drevenou stavebnicou.
Temporäre Kunsthalle Berlin
Miesto: Schlossplatz, Berlin
Architekt: Architekt Krischanitz ZT GmbH
Vedúci projektu: Anke Hafner
Spolupráca: Sebastian Murr, Filip Steins
Stavebný inžiniering: aka ingenieure, Christoph Gengnagel
Výmera pozemku: 1 826,94 m2
Celková užitková plocha: 1 406,25 m2
Obstavaný priestor: 12 364 m3
Náklady: 1,5 miliónov € (45,19 miliónov SK)
Situácia s pôdorysom stavby
Pozdĺžny rez
Priečne rezy
Anna Salvová
Výkresy: Architekt Krischanitz ZT GmbH
Článok bol uverejnený v časopise ASB.















