Villa D
Škandinávsky dom má štýl, ktorý je obdivovaný na celom svete. Tvarmi aj materiálmi vie nadviazať úzky vzťah s okolím. Villa D na štokholmskom predmestí Tyresö nadväzuje na všetko, čo je severským architektom sväté.
![]() |
Poznáte výhody Klubu ASB? Stačí bezplatná registrácia a získate sektorové analýzy slovenského stavebníctva s rebríčkami firiem ⟶ |
Čím vyniká neveľká vila medzi kvalitnými severskými realizáciami? Predovšetkým tým, že jej koncepcia sa nezačína úsilím splynúť s krajinou, ako kážu klasici, ale k nemu až dospieva. Priznáva fakt, že stavba obydlia je vždy razantným zásahom do prírody. Klinovitým tvarom to ešte viac podčiarkuje – zdola od cesty sa klin v skalnatom kopci sebavedome dvíha nad terén.
Nový pohľad na severský štýl
Dom obsahuje symboliku harmónie protikladov, ktorá je dôležitá nielen v celkovom kontexte architektúry, ale aj vo všeobecnejšom zmysle tolerancie a ohľaduplnosti. Vďaka drevenému obkladu patinovanému na farbu borky sosny vila pôsobí, akoby už dlho stála na skalnatom kopci na kraji borovicového hájika.
Kto to dokázal preformulovať kánon? Autorkou tohto projektu je Rahel Belatchew Lerdellová. Narodila sa v Etiópii, vyrástla v štvrtom najväčšom švédskom meste Uppsala. Študovala na renomovanej parížskej École Spéciale d‘Architecture – zaradila sa medzi takých absolventov ako bývalá iránska cisárovná Farah a Christian Urvoy de Portzamparc, autor éterickej budovy filharmónie v Luxemburgu. Rahel pracovala vo Francúzsku, Luxembursku a v Tokiu a napokon sa vrátila do svojej druhej vlasti.
![]() |
![]() |
Jej riešenie ukazuje, ako vysoko je príroda v rebríčku hodnôt Škandinávca. Rozhodne vyššie ako pohodlie a reprezentácia. Jednou z mála požiadaviek mladých manželov, podľa ktorých sa dom volá Villa D, bolo, aby pri výstavbe minimálne narušili skalu.
Zo štruktúry kryštalickej horniny sa stal ekvivalent záhrady. Tak ako u nás poteší na ceste k domu pohľad na rozkvitnutý ružový krík alebo jazierko s leknami a kaprami koi, tu je atrakciou skala, ktorá vytvára s drevenou fasádou koridor vedúci od schodov až k hlavnému vstupu. A nad tým všetkým čnie iba obloha a koruny borovíc.
Po šestnástich schodoch sa zjaví vstup so skleným prístreškom – jedným z viacerých technicistických akcentov. Sklo architektka použila nielen preto, aby prístrešok nezakrýval výhľad. Jeho uplatnenie v projekte má širší význam. S drevom na jednej a skalou na druhej strane vytvára sklo trojicu elementárnych prvkov. Podobné kombinácie sa opakujú v dome v rôznych podobách a rozhodujú tak o jeho výraze.
![]() |
![]() |
| Schody vedúce popri dome vyúsťujú na vzdialenejšom rohu. Prosto riešené schody na terasu sú ukážkou severského rebríčka hodnôt – zásah do krajiny musí byť minimálny. Tejto zásade ustupuje aj potreba reprezentatívnosti. | Vstup na podlažie so spálňami a pracovňou. Zastrešenie nad vstupom, pôsobiace, akoby sa dalo sklápať, je jedným z viacerých technicistických detailov v dome. Sklené a leštené kovové prvky tu vytvárajú kontrast s rustikálnym obkladom a drsnou skalou. |
Vstup vedie do privátnej časti so spálňami a malou pracovňou. Do spoločenskej časti sa prechádza po ďalších jedenástich schodoch vedúcich popri skale až na vrchol kopca, kde sa ocitnete v hájiku šelestiacich borovíc. Tam už nekráčate po dlažbe, ale po koberci z ihličia, z ktorého vedie prístup k širokým dreveným schodom smerujúcim na terasu.
Samozrejme, možno si predstaviť aj pohodlný a praktický krytý vstup od cesty, ktorý by bol pod klinom. Zaiste by sa ním vytvorila dispozícia, ktorá by bola z nášho pohľadu menej neobvyklá – so spoločenskými priestormi na dolnom a súkromnými na hornom podlaží. To by však nebol severský dom sústredený na „všednú“ krásu okolitej prírody, ale „náš“ dom, v ktorom zvyčajne tvoríme „vlastný svet“.
![]() |
![]() |
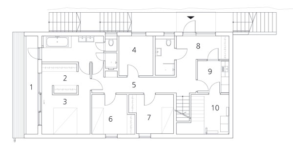
| Prvé podlažie: 1 – terasa, 2 – šatník, 3 – spálňa, 4 – pracovňa, 5 – chodba, 6 – spálňa, 7 – spálňa, 8 – vstup, 9 – práčovňa, 10 – technické zariadenia | Druhé podlažie: 1 – lodžia, 2 – obývacia izba, 3 – jedáleň, 4 – kuchyňa, 5 – terasa |
Panoráma na konci stúpania

Okná dvoch menších spální s vlastnou kúpeľňou vychádzajú na dlhšiu stranu, protiľahlú tej, kade vedú vonkajšie schody. Keďže vzadu, vzhľadom na riešenie prístupu, nemôže byť ani reči o súkromnej zóne, funkciu klasickej záhradnej, ľahšej a neformálnej fasády preberá spomínaná bočná strana. Jej drevený obklad má schodovitú dolnú líniu, čo pripomína komunikáciu na opačnej strane a zároveň vytvára dojem krehkej nadstavby na mohutnom betónovom bloku.
Vnútorné schodište, ktoré spája podlažia, nie je na hornom podlaží uzavreté múrmi. Osvetlenie cez svetlík obohacuje obývací priestor – v podstate jednotrakt – hrou svetla a tieňa. Redukcia až k elementárnemu, ktorú sme pozorovali pred domom, pôsobí aj v interiéri – základom je čierna a biela, so sivými prechodmi. Táto koncepcia viedla aj ku kontrastnému riešeniu styku dlažby so svetlou drevenou podlahou.

Konečnou zastávkou putovania po Ville D je „obývačková“ lodžia, na ktorú vedie jediný a posledný schodík; po jeho prekonaní je po toľkom stúpaní pre každého odmenou panoramatický pohľad na lesnatú krajinu.
Karol Klanic
Foto: RB Arkitektur


















