Prístavba kancelárií vo Vysokom Mýte komunikuje s okolitým prostredím
Vysoké Mýto je nenápadné mestečko v Pardubickom kraji. Znalci možno vedia, že v ňom sídli výrobca autobusov Karosa.
![]() |
Poznáte výhody Klubu ASB? Stačí bezplatná registrácia a získate sektorové analýzy slovenského stavebníctva s rebríčkami firiem ⟶ |
Ďalšou zaujímavosťou však je, že tu stojí zaujímavá realizácia objektu, ktorý sa dostal do užšieho výberu aktuálneho ročníka Českej ceny za architektúru. Autormi prístavby kancelárií sú architekti z renomovaného štúdia Prokš Přikryl architekti, ktorí majú na konte množstvo realizácií, umiestnení v architektonických súťažiach či nomináciu na Cenu Miesa van der Rohe.
Za zmienku stojí napríklad zázemie biotopu v Honěticiach, prístavba Vrbatovy boudy alebo zázemie jabloneckej priehrady Mšeno. Vo Vysokom Mýte však boli architekti postavení pred komplikovanú situáciu, s ktorou sa vyrovnali spôsobom im vlastným – starostlivým myšlienkovým procesom a nápadom na mieru.
Komplikované podmienky
Parcela sa nachádza vo vnútrobloku neďaleko centra, obkolesená stenami susedných domov. Logickým krokom teda bolo komponovať stavbu po vertikálnej osi a situovať ju na severnú hranicu pozemku. Docielili tak zachovanie vzdušnosti pozemku a predišli tieneniu a iným kolíziám s okolitými objektmi. Zrkadliaca fasáda komunikuje s prostredím, preberá na seba kolorit mestskej panorámy, no svojou siluetou zapadá.
Jaganie v škridlovej krajine
„Úvahy o materiáli fasády nakoniec viedli k prírodnému hliníku z niekoľkých dôvodov,“ vysvetľujú voľbu materiálu architekti. „Z požiarneho hľadiska bolo nutné vybrať nehorľavý materiál. Požiarne dôvody ovplyvnili aj umiestnenie okien. Ďalej v súlade s celkovou koncepciou suchej výstavby nadzemnej časti mala byť fasáda skladaná, respektíve montovaná.
Materiál mal byť zároveň použiteľný ako strešná krytina pre jednotný výraz domu. Nakoniec rozhodlo architektonické hľadisko – voľbou reflexného plechového plášťa dom odráža živý svet okolo seba a mení sa v priebehu dňa. Toto dosiahne najlepšie hliník vo svojej prírodnej podobe bez povrchových úprav.“
Stavebné limity
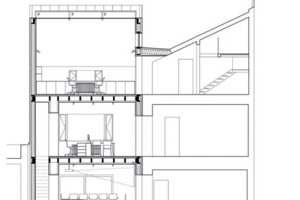
Spôsob výstavby a konštrukčný systém sa odvíjali od obmedzených možností, ktoré pozemok poskytoval. Kľúčová bola aj realizácia a rýchlosť výstavby. Architekti preto zvolili ľahký drevený skelet na základových pásoch, trámové stropy a prevetrávanú falcovanú fasádu.

Tri poschodia obsahujú tri miestnosti – dve z nich sú prepojené obslužným schodiskom skrytým pred zrakmi návštevníkov. Všetky priestory sú prístupné z pôvodného objektu. Podkrovie presvetľuje panoramatické okno na sever a skromné južne orientované okno.
Miesto: Vysoké Mýto, Česko
Investor: MDS projekt, s. r. o.
Architekt: Prokš Přikryl architekti
Rozmery objektu: 11,85 x 6,25 x 4,9 m
Projekt: 2017 Realizácia: 2019










