Austrálsky zelený nápad
Otázku, ako skĺbiť modernú architektúru a ekologický prístup, si určite kladú mnohí. A kladú si ju ľudia nielen u nás – tentoraz máme pre vás jedno naozaj zaujímavé riešenie od protinožcov. Architekti z kancelárie Kennedy Associated Architects sa nebáli pustiť do vlastných patentov a výsledkom je dom, o ktorom je škoda iba čítať. Lepšie by bolo v ňom bývať.
![]() |
Poznáte výhody Klubu ASB? Stačí bezplatná registrácia a získate sektorové analýzy slovenského stavebníctva s rebríčkami firiem ⟶ |
Neexistujú malé úlohy

Väčšina činností sa, ako vyplynulo z povahy zadania, odohráva v bezbariérovom prízemí. Architekti sa v dispozícii pohrali s trojmetrovým modulom, ktorý vychádza zo šesťmetrovej šírky pozemku. Obývacia izba je dlhá 12 metrov, dvorček o polovicu kratší, obytný priestor s galériou má výšku šesť metrov… Toto prísne rozmeranie však vo výsledku nepôsobí násilne, naopak, kto o mágii čísiel nevie, pocíti iba súlad. Pre zaujímavosť možno dodať, že rovnaký rozmerový modul – trojmetrová kocka – je použitý i v geograficky bližšej a aj slovenským čitateľom známej netradičnej vile z ateliéru HŠH architekti, ktorá stojí v Beroune.
Domček je síce pekným príkladom čistej modernej architektúry, na prvý pohľad však na ňom nie je nič zložité či nezvyčajné, ani usporiadanie miestností nie je vôbec revolučné – na takom malom pozemku by sa totiž revolúcia v bývaní robila veľmi ťažko. Čím je teda tento malý dom taký výnimočný? V spôsobe, akým pristupuje k využívaným zdrojom. Tí, ktorí nestavali či nekupovali vlastné bývanie, sú už možno unavení „udržateľným rozvojom“ a „ekologickým prístupom“, ale pri pohľade na pravidelné mesačné účty za plyn, vodu a elektrinu si asi každý z nás položí otázku, ako nerezignovať na pohodlné a pekné bývanie, a pritom nezruinovať rodinný rozpočet. Austrálski architekti sa rozhodli nad touto základnou otázkou dôkladne zamyslieť, a tak vznikol dom, ktorý môže byť pre mnohých z nás inšpiráciou.
Čo je doma, to sa počíta
V zadnej časti záhradky sú umiestnené tri nádrže, ktoré sú schopné zadržať 9-tisíc litrov dažďovej vody. Oproti nim je inštalovaná takzvaná zelená stena, ktorej prevádzka súvisí s celým systémom spracovania vody. Zhromaždená dažďová voda sa používa na sprchovanie či kúpanie a pre malý bazén umiestnený v záhradke.
Aj všetka použitá voda, okrem vody z toaliet, sa znova využije priamo na mieste – práve tým je tento dom unikátny. Voda prechádza zelenou stenou, kde sa filtruje a čistí, a následne sa využíva ako úžitková voda napríklad na splachovanie toaliet. Obyvatelia domu takto ušetria až 80 percent spotreby vody z mestského vodovodu – použijú jej denne maximálne sto litrov.
Zelená stena tohto typu je podľa architektov z kancelárie Kennedy Associates Architects, ktorí sa spolu so špecialistami podieľali na jej návrhu, jediná na svete. Je to, zjednodušene povedané, veľký filter zložený z troch poschodí kontajnerov s rôznymi druhmi materiálov, ktorými preteká voda. Po vyčistení voda nie je pitná, môže sa používať len ako úžitková.
![]() |
![]() |
| Hlavný obytný priestor sa zdvíha do výšky dvoch poschodí. Okná sú obrátené na západ a zabezpečujú tak dostatočné osvetlenie, žalúzie bránia prílišnému prehrievaniu priestoru. | Schodisko vedie na galériu a do jedinej spálne, ktorá nie je bezbariérová. |
Čo za to?

Nielen voda
Architekti však mysleli nielen na spotrebu vody, ale aj na úsporu tepla. Je pravda, že v Sydney nie je táto otázka taká pálčivá ako v našich klimatických podmienkach – minimálna priemerná teplota počas roka je tu len o čosi menej než 14 °C, aj napriek tomu sa však tvorcovia snažili využiť takmer každú voľnú plochu strechy na inštaláciu solárnych panelov. Tie ohrievajú vodu v bazéne a v domácnosti. Svetlíky zasa pomáhajú pri získavaní pasívnej solárnej energie, podobne ako žalúzie chránia pred ňou (a pred nepríjemným prehrievaním, ktoré je s tým spojené). Ďalšími detailmi, ktoré berú ohľad na životné prostredie, je použitie polypropylénových rúrok namiesto medených, ďalej prírodných olejov na drevené podlahy, LED diód na svietenie a podobne.
![]() |
![]() |
Domček z architektonickej kancelárie Kennedy Associates Architects je skvelým príkladom spojenia jednoduchej, kvalitnej architektúry a šetrného prístupu k životnému prostrediu. U nás ešte stále vyrastá viac stavieb, ktoré sa prikláňajú len k jednému z týchto dvoch prístupov, ako keby nebolo možné skĺbiť oboje v jednom dome. Príklady zo zahraničia nás však ubezpečujú, že to možné je – či už ide o pasívne, alebo nízkoenergetické domy, alebo o podobne premyslené systémy ako v tomto prípade. Je teda len na nás, investoroch, aby sme spolu s pekným domom vyžadovali aj ekologický prístup.
Pôdorys prízemia
1 vstup, 2 + 3 spálne, 4 kúpeľňa, 5 hlavný obytný priestor s kuchyňou, 6 práčovňa, 7 bazén, 8 nádrže na dažďovú vodu, 9 absorpcia dažďovej vody, 10 parkovanie/absorpcia dažďovej vody
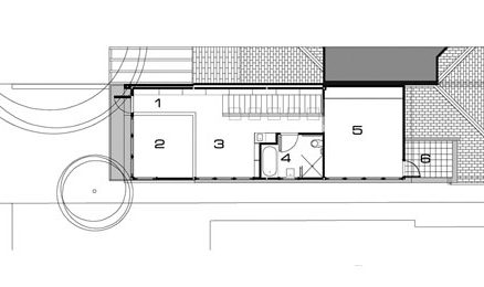
Pôdorys prvého podlažia
1 knižnica, 2 prepojenie s prízemím, 3 pracovňa, 4 kúpeľňa, 5 spálne, 6 balkón
Pozdĺžny rez schodiskom
1 – 3 spálne, 4 kúpeľňa, 5 hlavný obytný priestor s kuchyňou, 6 práčovňa, 7 bazén, 8 nádrže na dažďovú vodu
Hana Roguljič
Foto: Simon Anderson, Bart Maiorana, Nick Bower



















