Duch minulosti s inteligenciou súčasnosti
Hlavný pokladník I. bratislavskej sporiteľne Karol Schlemmer mal o svojom reprezentatívnom dome jasno. Bude stáť na ulici, ktorá sa na konci 19. storočia stala synonymom pre úspešnú „buržoáziu“. Blízkosť Arcibiskupského paláca (dnešný Úrad vlády) a Grassalkovichovho paláca (dnešný Prezidentský palác) zvyšovala prestíž pozemku i budovy. Je len príznačné, že jej autorom bol najproduktívnejší projektant vtedajšej Bratislavy Alexander Feigler. Po vyše sto rokoch pokračuje príbeh budov novou kapitolou. „Cieľom našej rekonštrukcie bolo zvýšiť úžitkovú plochu a zdôrazniť jeho historickú hodnotu,“ hovorí Ing. arch. Juraj Hermann, konateľ spoločnosti generálneho projektanta P-T, s. r. o. Ako zdôrazňuje zástupca investora Jaromír Szitás, celá prevádzka je riadená inteligentným systémom, ktorý sleduje aktuálne trendy administratívnych budov.
![]() |
Poznáte výhody Klubu ASB? Stačí bezplatná registrácia a získate sektorové analýzy slovenského stavebníctva s rebríčkami firiem ⟶ |
Rekonštrukcia histórie

„Rekonštrukcia zdôrazňuje architektonickú hodnotu historických fasád, zachováva ich pôvodné architektonické články a materiály, ako aj členenie okenných a dverných výplní,“ hovorí architekt Juraj Hermann. „V maximálnej miere sme sa snažili zachovať autentickú podobu. Do pôvodného objektu sme teda nezasahovali novotvarmi. Objekt má pôvodný objem aj architektonický výraz. Prístavba má súčasný charakter, ale členenie okien evokuje existujúcu pamiatku.“
Štefánikova 6

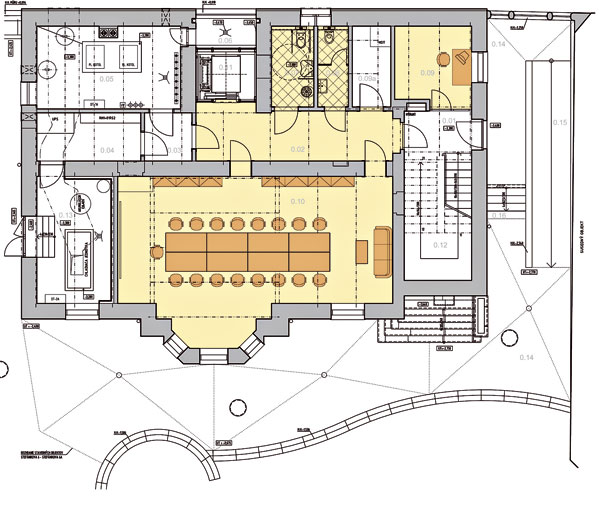
Zásadne sa zmenilo 1. PP, ktoré je sprístupnené priamo z novovytvorenej letnej terasy. Ťažiskovým priestorom je spoločenská sála prístupná z foyeru, s prepojením na kaviareň s barovým pultom. 1. a 2. nadzemné podlažie pozostáva z hodnotných pôvodných priestorov schodiska a miestností v uličnom trakte, ktoré slúžia ako kancelárie.
Kancelárske priestory sú riešené aj v dvorovej časti. Pôvodne povalový priestor sa po zhotovení nového oceľového krovu využíva na administratívne účely, v dvorovej časti pre strojovňu vzduchotechniky a chladenia.
Štefánikova 6a

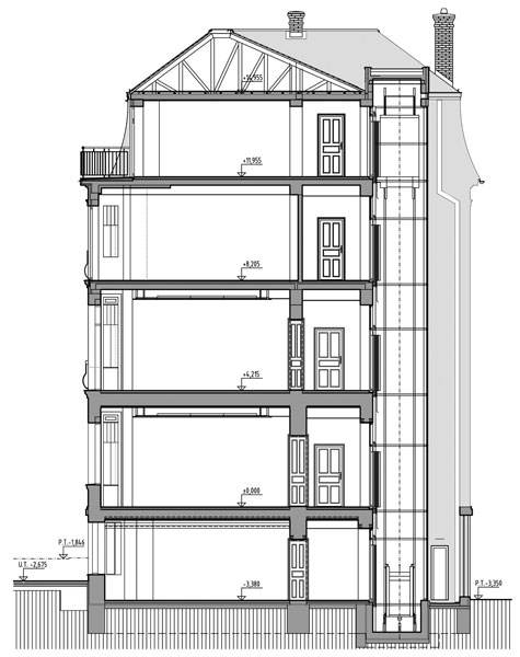
Nové zásahy do dispozície sú koncentrované v centrálnej časti zadného traktu, kde je popri kanceláriách umiestnený aj výťah, archívy a hygienické zázemie.
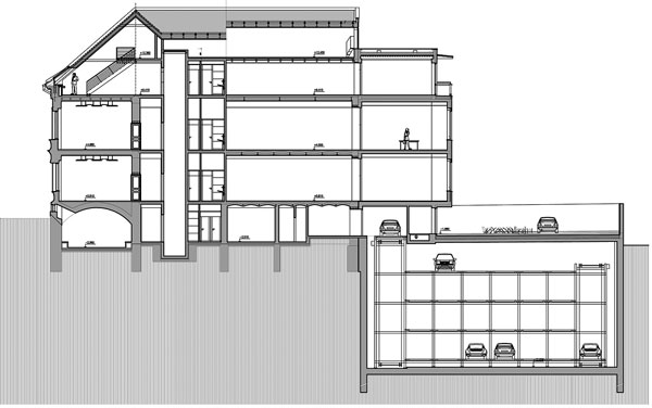
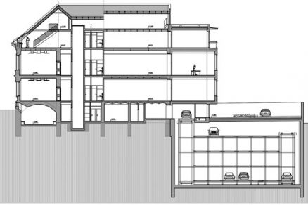
Zadná fasáda sa prebudovala a doplnila o nové okná a ozdobné prvky v v rovnakej kvalite ako ostatné priečelia. Nadstavba o jedno podlažie kopíruje pôvodné podlažia vrátane výzdoby fasád a vnútornej dispozície. Hodnota budovy a okolitého prostredia kládla zvýšené nároky aj na architektonické stvárnenie strechy. Vonkajší tvar nového krovu preto vychádza z pôvodného tvarovania. Poloha strešných okien a vikierov sleduje rytmiku fasád. Novú podobu so spoločenským rozmerom získalo aj doteraz nevyužité podkrovie. Zvolený typ výťahu s presklenou fasádou nepotrebuje samostatnú strojovňu, agregát je umiestnený pod stropom šachty nad poslednou stanicou. Náročný parkovací systém umožnil skultivovať záhradu, ktorá tak nemusela ustúpiť parkovaciemu územiu. Objekty v plnej miere zohľadňujú požiadavky na bezbariérový pohyb.
„Tento objekt bol pre nás výzvou,“ hodnotí architekt Hermann. „Predtým sme robili viaceré projekty z oblasti obchodných centier a priemyselných budov. Teraz sme sa dostali k historickej pamiatke, do ktorej sme sa snažili vniesť nový duch. Objektom sme venovali veľa hodín a dúfam, že sa to na výsledku aj prejavilo.“
Inteligentný systém riadenia
Celá budova je ovládateľná a vizualizovaná v rámci jedného počítačového programu. Inteligentný systém riadenia budovy bude možné vždy preprogramovať podľa požiadaviek jednotlivých užívateľov tak, aby čo najviac spĺňal ich predstavy. Výhodou takéhoto riešenia je okrem dosiahnutia úspor prevádzkových nákladov aj možnosť nastavenia nových parametrov systému vyhovujúcich požiadavkám užívateľov.
Osvetlenie – Jedna z najnovších technológií ovládania svetla „DALI“ umožňuje osvetlenie flexibilne zapínať a vypínať alebo individuálne tlmiť v jednotlivých priestoroch, či vo vybraných skupinách podľa želania, a tiež v rámci svetelných scén, napríklad v prezentačných miestnostiach. Svetlo je možné automaticky regulovať podľa intenzity vonkajšieho osvetlenia na konštantnú úroveň. Výhoda inteligencie budovy sa prejaví pri osvetlení napríklad vtedy, keď sa prepojí so zabezpečovacím a dochádzkovým systémom, kde je možné svetlo automaticky ovládať podľa prítomnosti osôb v kanceláriách.

Kúrenie a chladenie – Integrovanie kúrenia a chladenia do systému ovládania budovy prináša užívateľom zvýšený komfort v možnosti jednoduchého ovládania teploty v priestoroch kancelárií. Užívateľ si nastaví želanú teplotu a systém automaticky ovláda technológie tak, aby táto teplota bola dosiahnutá. Navyše, pri prepojení na zabezpečovací a dochádzkový systém a s prihliadnutím na časové programy budovy je kúrenie a chladenie v patričných časoch utlmované, čím dochádza k úspore. V dôsledku inteligentného ovládania nedochádza napríklad k trvalému vykurovaniu priestoru pri otvorených oknách. Nezvyšuje sa takto diskomfort prítomných osôb ani prevádzkové náklady. Kúrenie a chladenie má viacero prevádzkových režimov.

Prezentačný priestor – V prezentačnej miestnosti budovy sú jednoducho ovládané všetky technológie a zariadenia vrátane audiovizuálnej techniky. Jednoduchým pokynom obsluhy je celá miestnosť vrátane projektora či premietacieho plátna okamžite pripravená na prezentáciu a ďalším pokynom napríklad pre diskusiu alebo odchod z miestnosti.

Miesto: Ul. M. R. Štefánika č. 6 a č. 6a, Bratislava
Charakter: Rekonštrukcia, adaptácia a dostavba
Investor a prevádzkovateľ: Merius, a. s.
Generálny projektant: Projekt Team P-T, s. r. o., Bratislava
Finančný objem: 125 miliónov Sk
Termín ukončenia: 07/2004 – 05/2006
Generálny zhotoviteľ: Hornex, a. s.
Kapacitné údaje
Celková plocha pozemku
(vrátane záhrady, objektov 6 a 6a v ich spoločnom užívaní): 832,8 m²

Prenajímateľná plocha podlaží: 1 200,27 m²
Celková plocha podlaží: 1 403,59 m²
Zastavaná plocha: 500,96 m²
Celkový obstavaný priestor: 7 403,90 m³
Štefánikova 6a
Prenajímateľná plocha podlaží: 732,21 m²
Celková plocha podlaží: 883,89 m²
Zastavaná plocha objektu: 221,90 m²
Celkový obstavaný priestor: 4 200 m³
Dodávatelia
Komponenty, kompletný vizualizačný systém: ABB

Realizátor výkopovej jamy so špeciálnym pažením pre automatický parkovací systém: Solhydro
Chladiaca a vykurovacia technika: CIAT KVT, Bratislava
Vykurovacie kotly: VIESSMAN
Osvetlovacia technika Fagerhult: ELIS
Demontáž, odvoz a likvidácia azbesto-cementovej krytiny: Karol ORTH
Dodávka a montáž oceľovej konštrukcie krovu: STROJ-MONT, VMT , spol. s. r. o.
Krov, krytina, klampiarske konštrukcie, strešné okná: PB systém, s. r. o.
Odstránenie vlhkosti muriva metódou podrezávania stien: Miroslav Straňák – SANAM
Dodávka a montáž izolácií proti vlhkosti a vode: Špeciálne izolácie Bratislava, a. s.
Dodávka a montáž vzduchotechniky: Medacl, spol. s. r. o.
Výroba a montáž stavebno-stolárskych atypických výrobkov: Juraj Čalfa – FIRMA C a C – staviteľstvo a obchod
Dodávka a montáž zdravotechniky, ÚK a chladenia: TERMON, spol. s. r. o.
Dodávka a montáž slaboprúdu: MSS – Management Servise System, spol. s r.o.
Dodávka a montáž elektro: V-elektrik, s. r. o.
Dodávka a montáž slaboprúdových rozvodov: NETmont, s. r. o.
Dodávka a montáž výťahu: Schindler výťahy a eskalátory, a. s.
Izolácia spodnej stavby garáží, interiér: STAVA IP, spol. s. r. o.
Dodávka a montáž vodovodnej a kanalizačnej prípojky: STAV A-Z, s. r. o.
Vyspravenie a fasádny náter: Ján Meszáros – ŠTUKONZ
Maľby a nátery: Ladislav Erdélyi
Protipožiarne nátery oceľových konštrukcií: SIBATERM, spol. s. r. o.
Dodávka a montáž sadrokartónových konštrukcií: MPL staving, spol. s. r. o.
Špeciálne zakladanie – mikropilóty: STAS stavby a sanácie, s. r. o.
Dodávka a montáž hliníkových konštrukcií: AL-OCELL, s. r. o.
Dodávka a montáž parkiet: Jaroslav Krkoška – VANES
Dodávka a montáž elektrických pohonov brán a teleskopického stĺpika: Ing. Jaroslav Ondriáš – KORION
Dodávka a montáž obkladov z kameňa: Ing. František Čalfa, C ALFA REAL
Dodávka a montáž zámočníckych konštrukcií: Peter Kukliš – KOV-ZA-PAS
Spevnené plochy: Mramor, spol. s. r. o.
Podlahy z liateho teraca: TERRAZZO, s. r. o.
Dodávka a montáž polystyrénových ríms: BAFA, s. r. o.
Dodávka a montáž protipožiarnych stien a dverí: HASIL, s. r. o.
Ľudo Petránsky
Foto: Petra Bošanská












