Centrum súčasného umenia DOX+ oblečené do páperovej bundy
Leoš Válka, zakladateľ a riaditeľ múzea DOX, oslovil architekta Petra Hájka a jeho kolegov, aby navrhli dostavbu a rozšírenie jeho galérie. Inšpiratívne miesto koncentrujúce moderné umenie každého druhu totiž postupne začalo byť všetkým svojim aktivitám tesné.
![]() |
Poznáte výhody Klubu ASB? Stačí bezplatná registrácia a získate sektorové analýzy slovenského stavebníctva s rebríčkami firiem ⟶ |
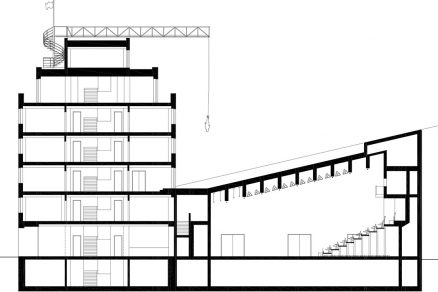
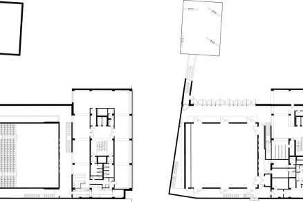
Architekti navrhli nové administratívne zázemie, priestrannú koncertnú sálu a skúšobňu pre Viliama Dočolomanského, ktorého súbor Farma v jaskyni má v DOXe stálu scénu. Základnú funkciu galérie tak teraz môžu doplniť koncerty, prednášky, premietanie filmov alebo tanečné predstavenie.
V budove bývalého drevárskeho závodu dnes sídli súkromná škola architektúry ARCHIP. Zatrávnená šikmá strecha slúži ako relaxačná zóna, z ktorej je možné sledovať akrobatické vystúpenia tanečníkov zavesených na lanách.
Dva gauče
Budovy DOX+ sú jedným kompozičným celkom. Tento princíp je symbolicky vyjadrený jednotným farebným odtieňom svetlosivej farby a plastickým prepojením všetkých častí do jedného celku. Vo výsledku tak možno komplex vnímať ako jednu štruktúrovanú sochu. Vďaka vzoru, ktorý vychádza z čalúneného nábytku, pripomínajú budovy dve veľké pohovky.
„Objekty sú oblečené do akejsi páperovej bundy,“ hovorí Petr Hájek. „Neobvyklá fasáda zatepľuje, ale aj pohlcuje odrazenú akustickú záťaž dvora a zabraňuje vzniku ozveny. Izolačná vata je potiahnutá pružnou izolačnou membránou, ktorá je potom v pravidelnom rastri kotvená do betónu. Je to mäkké a rovnako čalúnené ako napríklad pohovka, len zväčšené. Kotvy na čalúnení sú urobené tak, aby prenášali obrovské ťahy z toho, že si na ne človek sadne, čo je staticky ideálne riešenie. Čalúnenie sme teda len zväčšili v mierke zodpovedajúcej domu.“
Neprehliadnite: Čalouněná fasáda
Ladenie priestoru
Priestor sály je veľmi variabilný vďaka pohyblivému hľadisku. V zadnej časti je lávka pre kritikov a novinárov, ktorá je obložená akusticky pohlcujúcim materiálom. Architekti navrhli okolo obvodu sály prstenec niekoľkých foyer, ktoré sú špeciálne upravené tak, aby fungovali ako dozvukové komory.
Aj preto sa všetky tri sály dajú naladiť ako hudobný nástroj. Diváci sa môžu cez prestávky v týchto priestoroch voľne pohybovať alebo sa tu dajú usporadúvať výstavy. Všetko sa odohráva v útrobách divadelnej technológie.
Petr Hájek sa špecializuje práve na hybridne poňatú architektúru. Napríklad v Krkonošskom centre environmentálneho vzdelávania spojil funkciu galérie s garážami. Ako prvý bol v sále DOX+ odohraný koncert od skladateľa Mortona Feldmana v podaní osemdesiatčlenného Symfonického orchestra Českého rozhlasu. Dirigent Petr Kotík ohodnotil akustiku sály ako prvotriednu.

Betónová paleta
Hlavnými materiálmi budov DOX+ sú pohľadové betóny, pozinkovaný plech a sklo. Dodávateľom betónu na stavbu je TBG Metrostav, člen skupiny Českomoravský beton, ktorý na stavbu dodal spolu 1 600 m3 betónu rôznych druhov a tried. Uplatnenie tu našli špeciálne produkty, napríklad liata cementová pena Poriment, liaty anhydritový poter Anhyment a liaty cementový poter Cemflow.
Veľkou výzvou pre dodávateľov betónu bola doprava, pretože manipulačný priestor bol nízky a úzky. Na miesto sa teda mohli dostať len niektoré druhy autodomiešavačov, ktoré zaistili dodanie požadovaného stavebného materiálu.
Miesto: Poupětova 1, Praha 7
Architekt: Petr Hájek
Spolupráca: Tereza Keilová, Cornelia Klien, Benedikt Markel, Martin Stoss, Leoš Válka
Projektant: Dvořák & partneři
Generálny dodávateľ: IMOS Brno
Projekt: 2014
Realizácia: 2018
Foto: Benedikt Markel
Článok bol uverejnený v časopise ASB 3/2019.











