Bývanie na Hradnom kopci odmieta priemer
Hradný vrch v Bratislave a jeho blízke okolie bude vždy lukratívnym miestom. Bývanie v tejto lokalite patrí k spoločenskej prestíži, vstup architekta do prostredia staršej zástavby je zase jeho autorskou výzvou. Platí to aj pre dva samostatné viladomy s názvom Castle Hill Residence na Mudroňovej ulici, ktoré síce vyrástli v jasne zadefinovanom územnom pláne, ale ten nebol príťažou. Naopak, bol prostriedkom pevného konceptu, pričom bonusom bola parcela s veľkorysou záhradou. „Aj preto sme si menej všímali hlučnú Mudroňovu ulicu a otočili sme sa k slnku a výhľadu na Fialkové údolie,“ vysvetľuje koncept Ing. arch. Ľubomír Závodný, ktorý aj v tomto prípade potvrdil svoj rukopis: rešpektovanie kontextu stavby v prostredí, voľné prelínanie vnútorného a vonkajšieho priestoru, geometrická skladba priestorov a dôraz na architektonický detail.
![]() |
Poznáte výhody Klubu ASB? Stačí bezplatná registrácia a získate sektorové analýzy slovenského stavebníctva s rebríčkami firiem ⟶ |
Hľadanie užívateľského režimu
Lukratívna parcela však ani zďaleka nemusí byť kľúčom k úspechu, a to platí aj o dobrom projekte. „Treba ho vedieť aj obhájiť pred investorom,“ hovorí Ľubomír Závodný, ktorý zároveň tvrdí, že sa mu s investorom podarilo vykomunikovať svoju pozíciu. „Samozrejme, do dialógu vstupovali aj zahraniční partneri investora a niektoré veci sme menili, najmä čo sa týka materiálového výrazu objektu. Predtým mali byť napríklad na fasáde MAX platne, no teraz je tam omietka. Nemám však pocit, že by som musel v niečom veľmi zásadnom ustúpiť a robiť veľké kompromisy.“
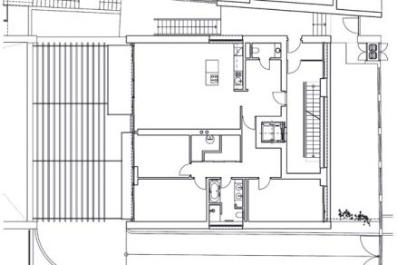
Aký je teda výsledok? Castle Hill Residence tvoria dva bytové domy, pričom v hornom Dome A sú tri byty, z toho dva mezonetové, zatiaľ čo v dolnom Dome B sú štyri byty. Ďalej je tu 12 garáží, úsporná, ale prehľadná dopravná komunikácia, a najmä akcentované balkóny a terasy, ktoré viladomom pridávajú charakteristický vonkajší výzor a zároveň sú miestom žiadaných výhľadov.
Tvar Castle Hill Residence sa vykryštalizoval aj v závislosti od limitnej hodnoty v hustote zastavanosti či zohľadnenia adekvátnej svetlotechniky (vlastnej i v susediacich domoch) a racionálnej skladby priestorov. Tie prísne sledujú svoju funkciu, ale nestrácajú ani estetický rozmer. Charakteristická je aj oceľovosivá farebnosť pri sokli a technickejších častiach objektu (zábradlie, nosníky, konzoly), výtvarne doplnená bielymi plochami omietok.
Inými slovami, dych vyrážajúca tvarová explózia je vylúčená – čo tam nepatrí, to tam nie je. „Naším cieľom nebolo vytvoriť objekt výrazovo sa odlišujúci od okolia, ale hľadanie užívateľsky kvalitného režimu,“ zdôrazňuje Závodný, ktorý opäť necháva divákovo oko kĺzať po dlhých čistých líniách. Tie sú v kontrapunkte s technicistickým zavesením terás a balkónov ako známom motíve z architektových predchádzajúcich realizácií.

Cez racionalitu výrazu sa otvárajú dvere k vytvoreniu vysokej efektivity kvalitného bývania. Ten podporuje dôraz na takmer neviditeľný detail, ktorý je však hýbateľom vzťahov medzi interiérom a exteriérom. Tie sú plastické a plynule prechádzajú cez svoje tradičné hranice. To je však už samozrejmá výbava Závodného rukopisu, ktorý vo svojej vyhranenosti rád využíva jemné narúšanie overených postupov.
Interiér je potom logickou odozvou vonkajšieho tvarovania hmôt a konštrukcií, pričom vo svojej skladbe i pôdoryse sleduje maximálnu snahu o funkcionalitu dispozičného riešenia. Tri byty v Dome A sú 4-izbové (z toho 2 mezonetové), ktorých plocha sa pohybuje od 116 do 128 štvorcových metrov. Štyri byty v Dome B sú 3- a 5-izbové s rozlohou od 110 do 175 štvorcových metrov.
V tých väčších priestorovo dominuje obývačka spojená s kuchyňou, ktoré zaberajú takmer tretinu celkovej úžitkovej plochy. Ich štvrtá „stena“ orientovaná na juhozápad je celozasklená a vytvára v tomto rozľahlom priestranstve spektakulárny výhľad na okolitú scenériu a zároveň je výpravným nositeľom prirodzeného svetla.
V prízemnom byte je potom veľká terasa, ktorá je priamo napojená na záhradu. Je len prirodzené, že veľkorysý dispozičný nádych predpokladá nadštandardné materiály a interiérové doladenie priestorov. To sú už však individuálne príbehy užívateľov, ktorí v týchto dňoch testujú prevádzku viladomov Castle Hill Residence. „A až skutočný život stavby ukáže pravdivosť konceptu,“ dodáva Ľubomír Závodný, ktorý do tohto príbehu o bývaní opäť vtlačil dôležitý predpoklad – dobrú architektúru.
Rez
Castle Hill Residence

Generálny projektant: Architektonická kancelária Ľubomír Závodný
Autor: Ing. arch. Ľubomír Závodný
Spolupráca: Ing. arch. Juraj Benetin, Ing. arch. Michal Lang, Ing. arch. Juraj Sumbal
Hlavný inžinier projektu: Ing. Ľubomír Žemla
Investor: Promo – Real, s. r. o.
Projekt: 2004 – 2006
Začiatok realizácie: 12/2006
Ukončenie realizácie: 11/2008
Plocha pozemku: 2 020 m2
Plocha záhrady: 1 260 m2
Obostavaný priestor: 4 751 m3
Zastavaná plocha: 455 m2
Úžitková plocha: 942 m2
Počet apartmánov: 7
Dom A: 3 apartmány s celkovou úžitkovou plochou 356 m2 + terasy 108 m2
Dom B: 3 + 1 apartmány s celkovou úžitkovou plochou 476 m2 + terasy 50 m2
Generálny dodávateľ: REDING, a. s.
Dodávatelia:

Chladenie: Daikin
Parkety: Essox
Prírodný kameň: Grandstone
Výťahy: ThyssenKrupp výťahy
Okná, sklené steny a dvere: Kalypso
Interiérové dvere: Comsi
Vchodové dvere: Sherlock
Liate podlahy: Terrazzo
Záhradné úpravy: Garden Art
Vybavenie kúpeľní: Sant
Umývadlá: Edil Friuli
Ľudo Petránsky
Foto: Dano Veselský
Článok bol uverejnený v časopise ASB.













