Späť na článok
Obchvat R3 odľahčí centrum Tvrdošína od tranzitnej dopravy
5 / 8
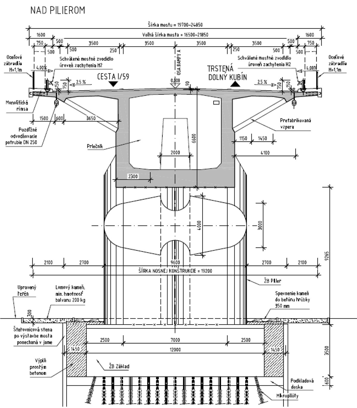
Obr. 5 Vzorový priečny rez SO 211 Most na privádzači Nižná (vetvy A) v km 0,5 cez rieku Orava
Zdroj: HOCHTIEF SK s.r.o.