Späť na článok
Znovuzrodenie chalupy pod Krkonošami
21 / 22
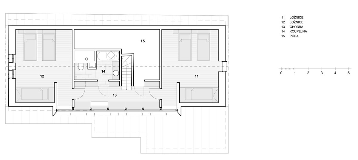
Pôdorys 2. NP