Späť na článok
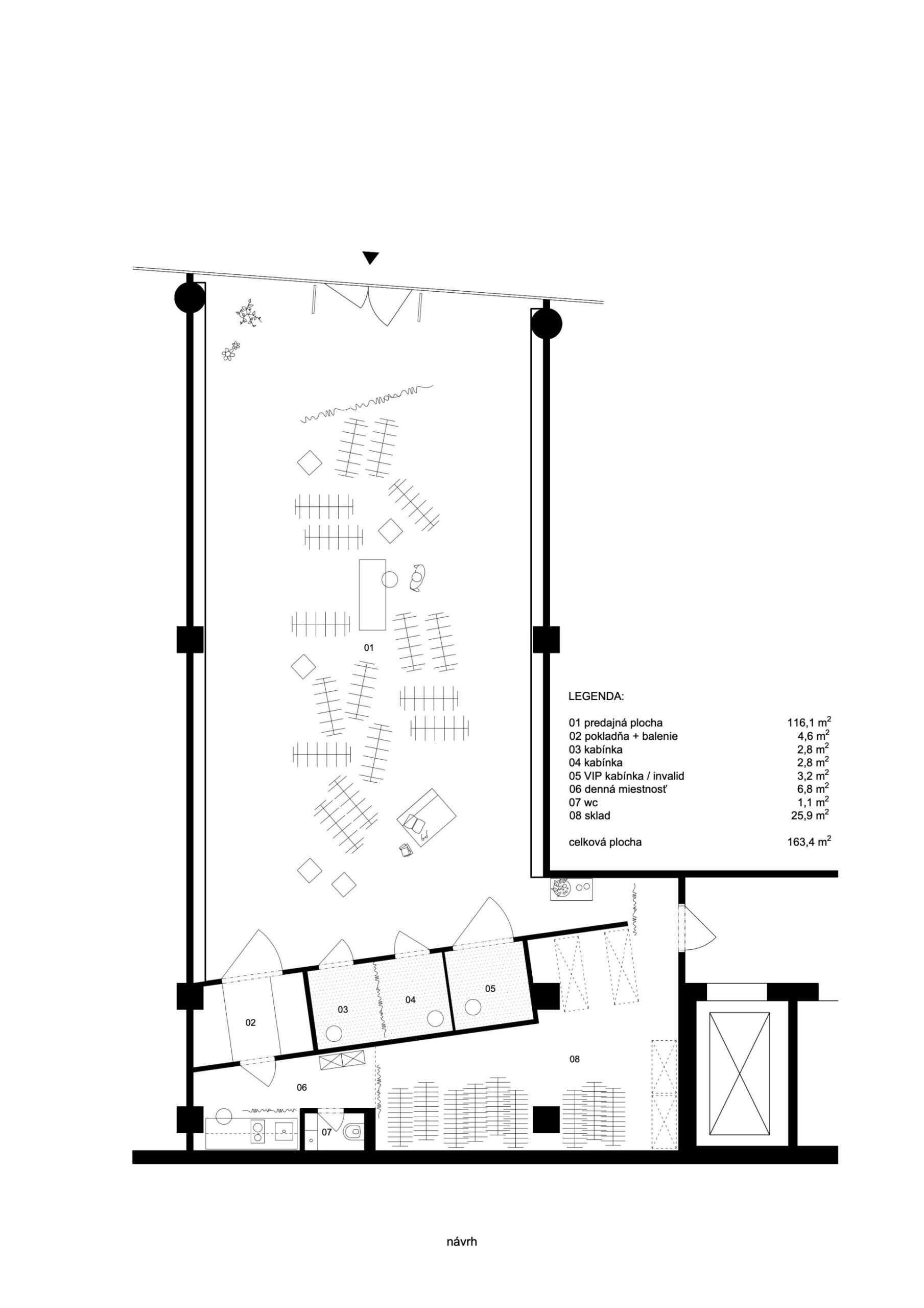
Ich interiéry sú povestné minimalizmom. Vlajkovú prevádzku v Bratislave schovali za oponu
12 / 13
Vlajková loď značky NEHERA v bratislavskej Eurovei
Zdroj: Kilo/Honč