Späť na článok
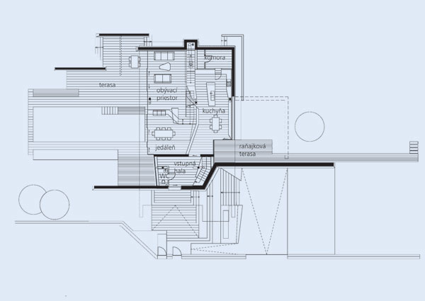
Trojnásobne obdarení výhľadom
17 / 20