Späť na článok Piano Residence chce dotvoriť atmosféru starých uličiek v Žiline
7 / 8
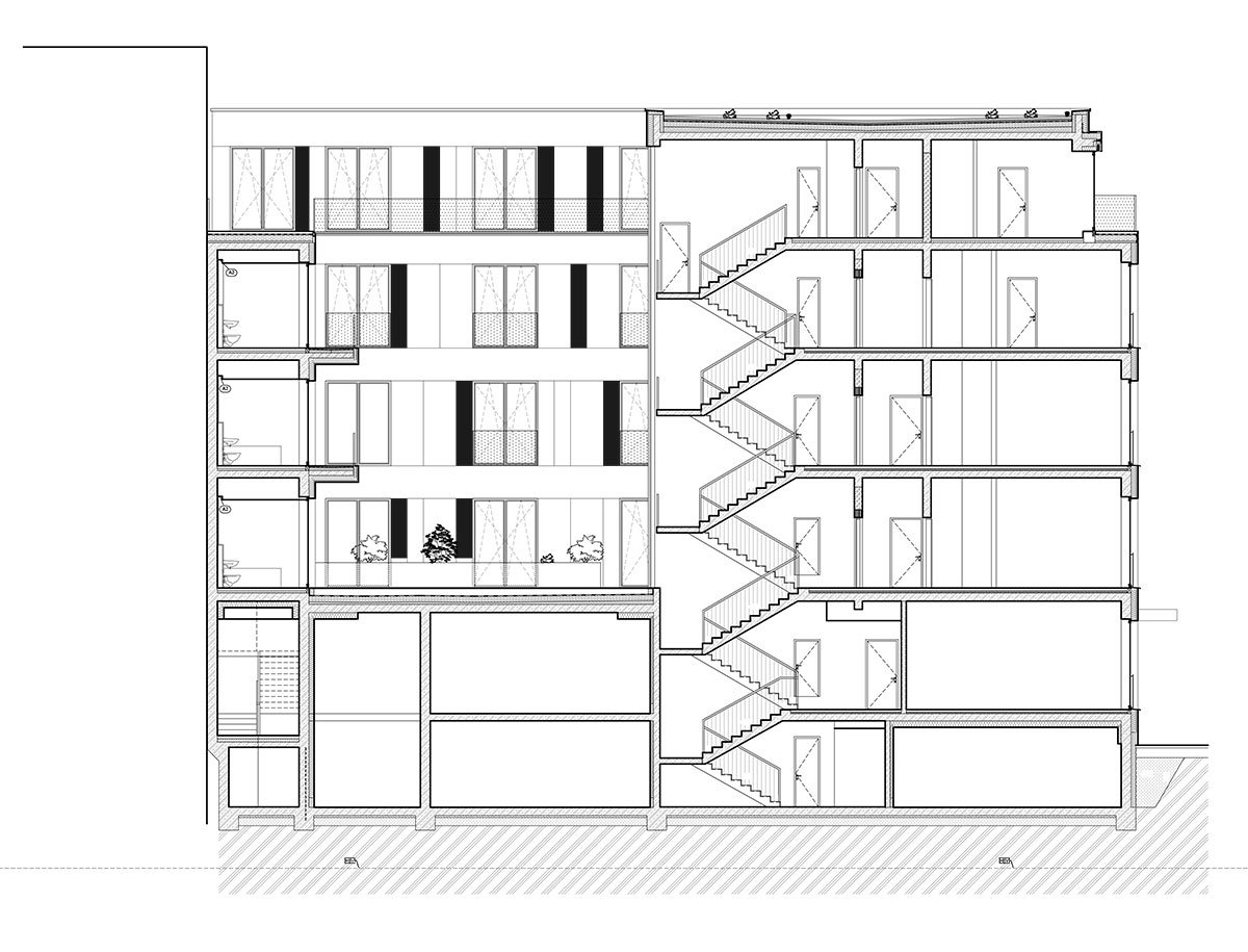
Priečny rez.
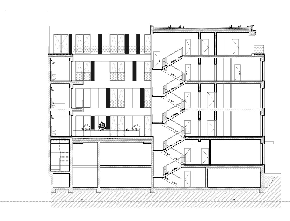
Priečny rez.
ASB Logo ASB Logo