Späť na článok
Piano Residence chce dotvoriť atmosféru starých uličiek v Žiline
6 / 8
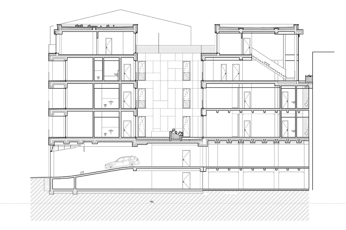
Pozdĺžny rez schodiskom.