Späť na článok
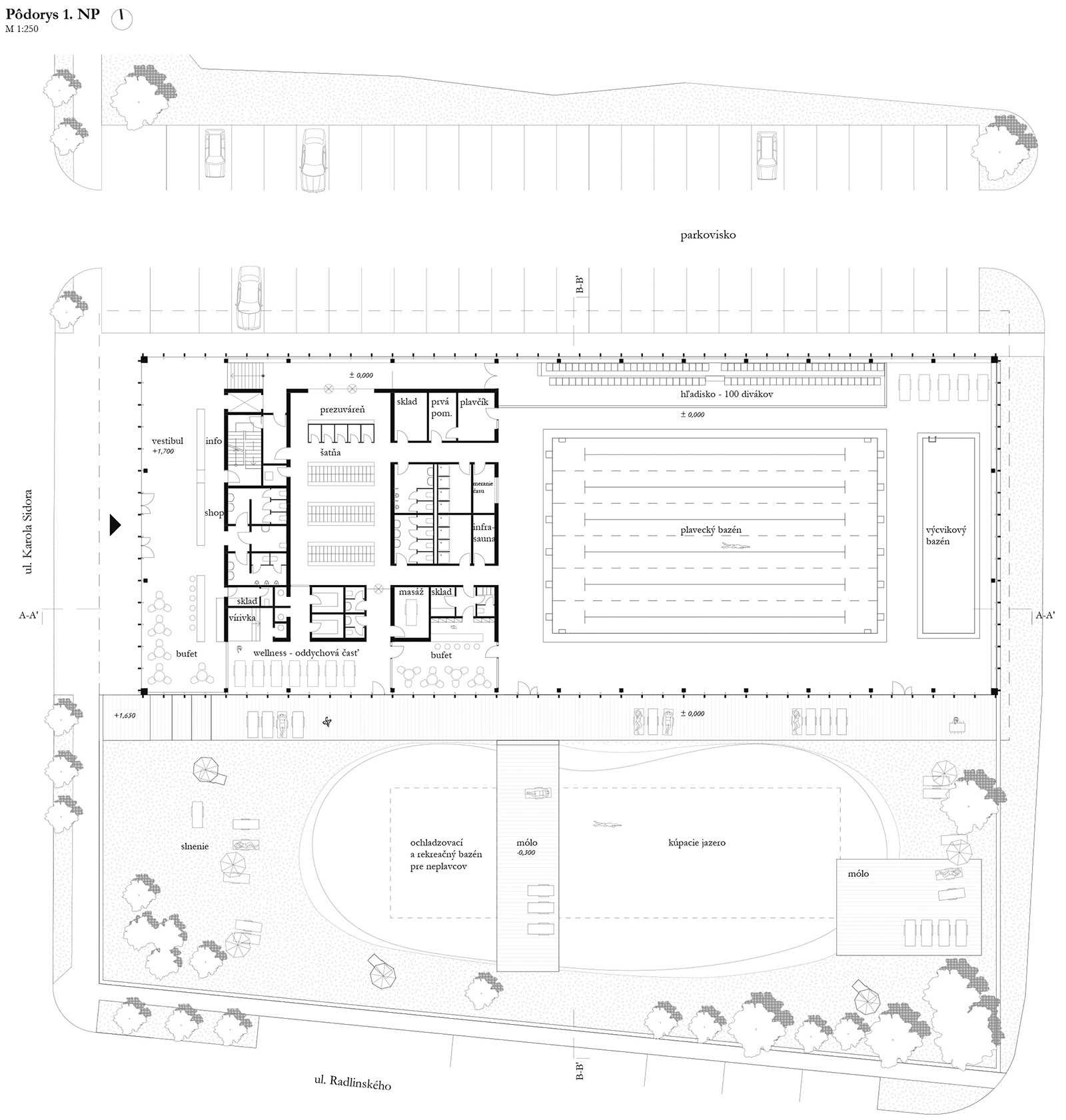
Mestská plaváreň v Ružomberku
11 / 13
Pôdorys 1. NP 1