Späť na článok
Dom s cédrovým obkladom ctí tradície, nové trendy i okolie
14 / 21
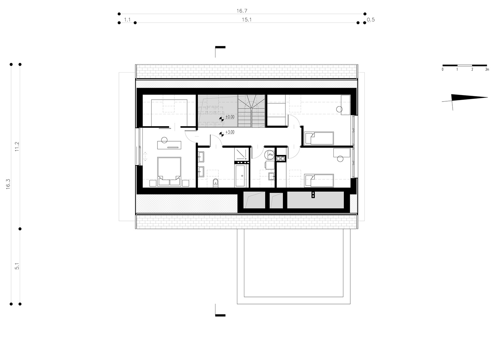
Pôdorys prvého podlažia