Späť na článok
Dom s cédrovým obkladom ctí tradície, nové trendy i okolie
13 / 21
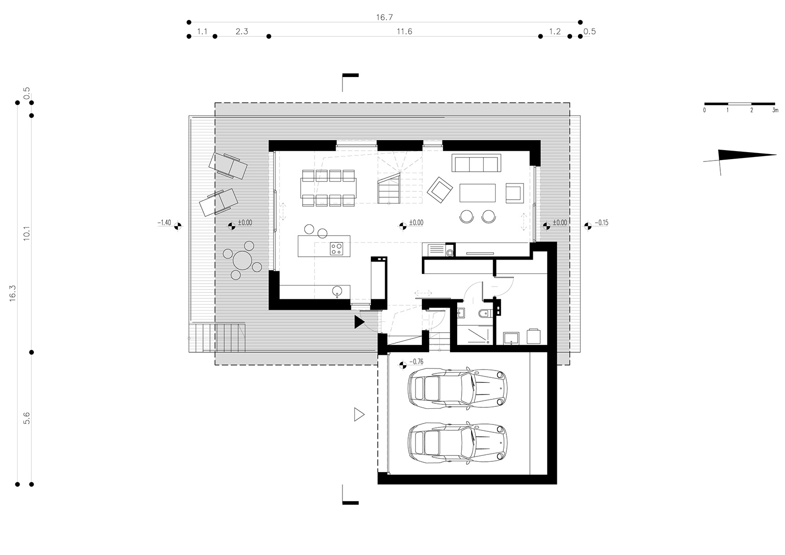
Pôdorys prízemia