Späť na článok
Budova knižnice a seminárneho centra kampusu BOKU je miestom, kde vyučuje drevo
14 / 16
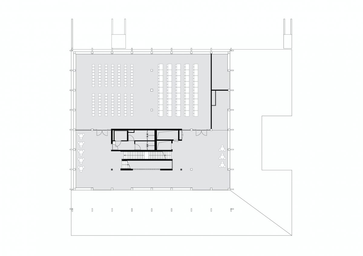
Pôdorys prízemia.
Zdroj: SWAP Architekten