Späť na článok
Ako na prázdninách u starých rodičov. Architekti premenili dom zo 70. rokov na moderné bývanie s vidieckou dušou
16 / 17
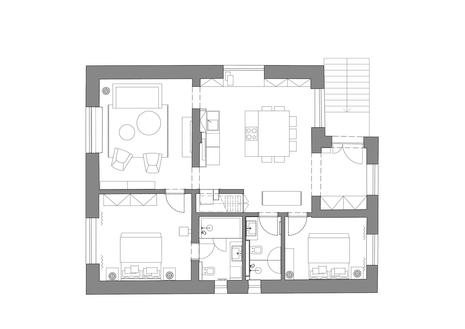
Rekonštrukcia domu Štvorec, Vojka nad Dunajom - nový pôdorys
Zdroj: KCA studio