Späť na článok
Sebestačná víkendová chata s ostrovným systémom
11 / 16
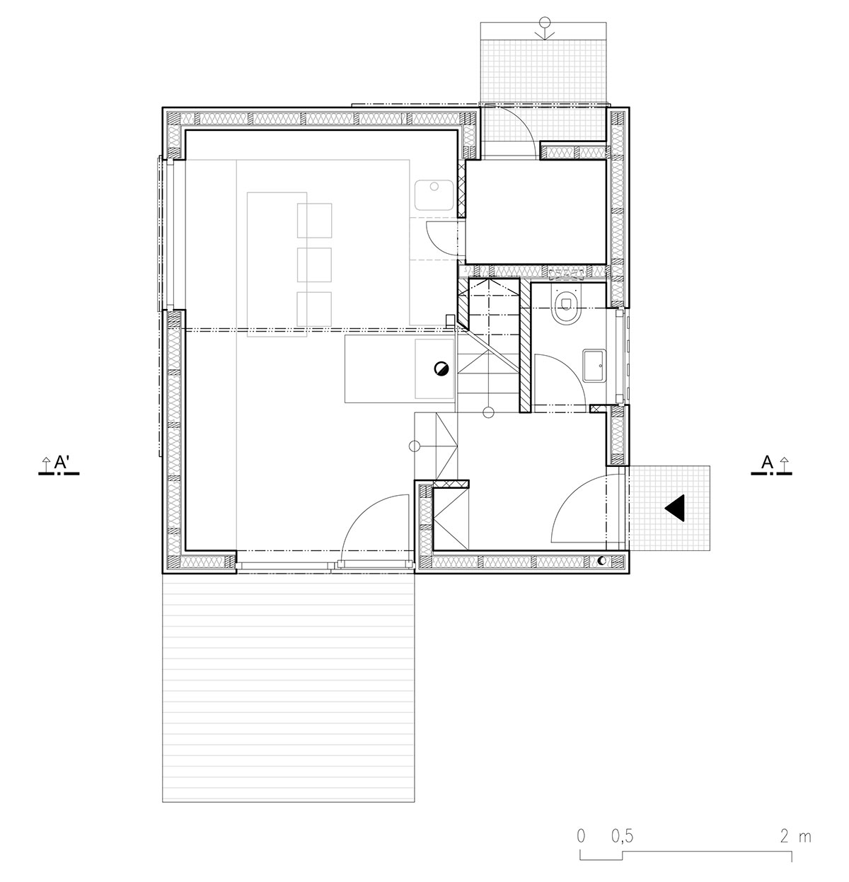
Pôdorys 1. NP