Späť na článok Preglejkový dom
14 / 16
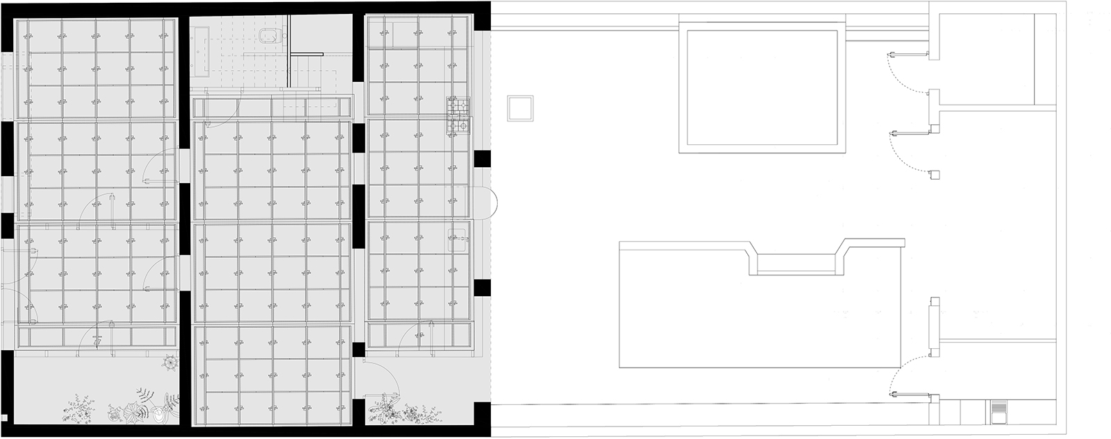
Pôdorys 1. NP