Späť na článok Penzión Škola za kostolom
12 / 14
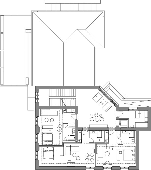
Pôdorys 2. NP Penzión Škola za kostolom