Späť na článok
Materská škola ako jedna veľká preliezačka
12 / 18
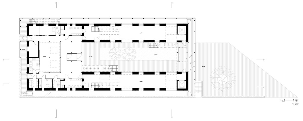
Pôdorys 1. NP