Späť na článok
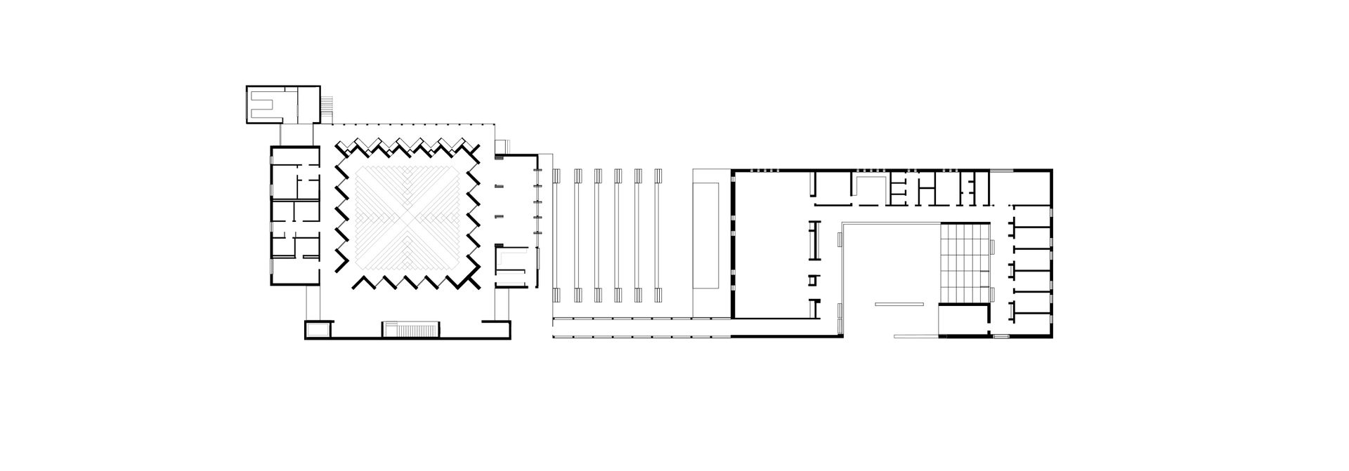
Kostol ako miesto pre všetkých. Tento ponúka pokojné miesta na rozjímanie, ale aj spojenie s prírodou
25 / 26
Nový kostol v Højvangene
Zdroj: Henning Larsen Architects