Späť na článok
Funkcionalistický mestský blok v Banskej Bystrici
9 / 12
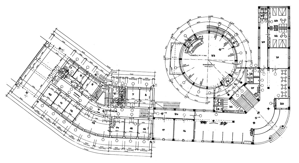
Pôdorys Notárskeho internátu vľavo Krajská odborová rada.