Späť na článok
Organické tvary cirkevného školského centra priťahujú pohľady okoloidúcich
15 / 16
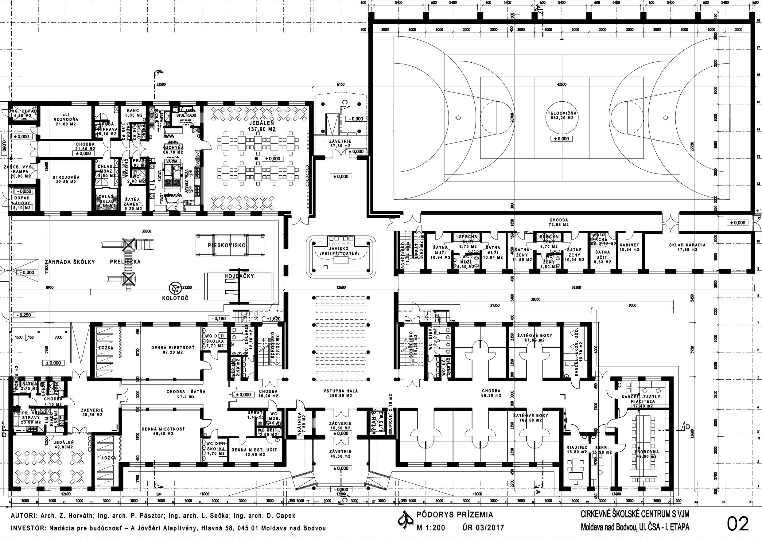
Pôdorys prízemia.
Zdroj: Archív architektov