Späť na článok
Ako s citom rozšíriť starý hospodársky dom
14 / 17
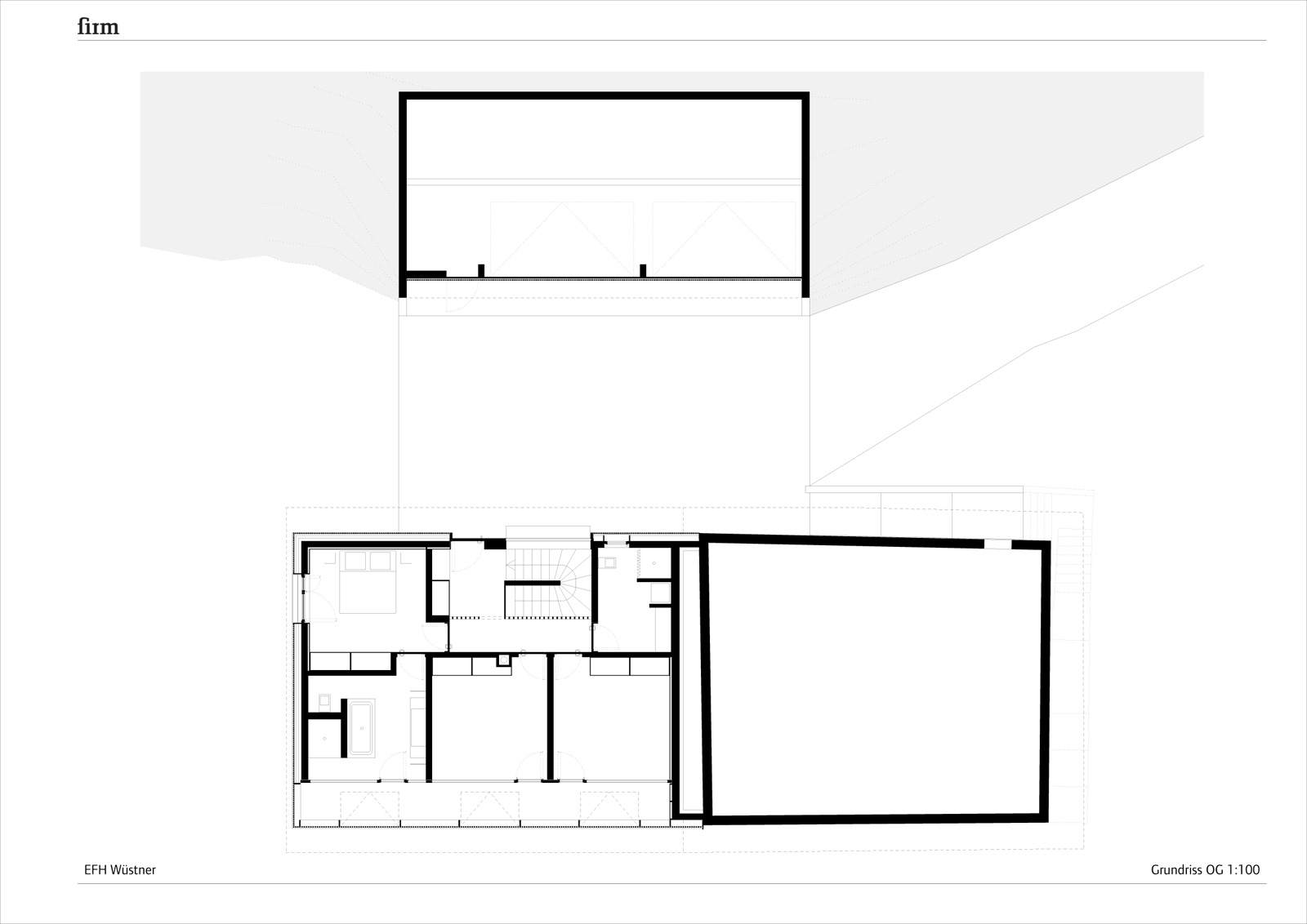
Na najvyššom poschodí sa tiež nachádzajú spálne a hygienické zázemie.